Leave a Message

Thank you for your message. We will be in touch with you shortly.

Explore Our Properties

Property Description

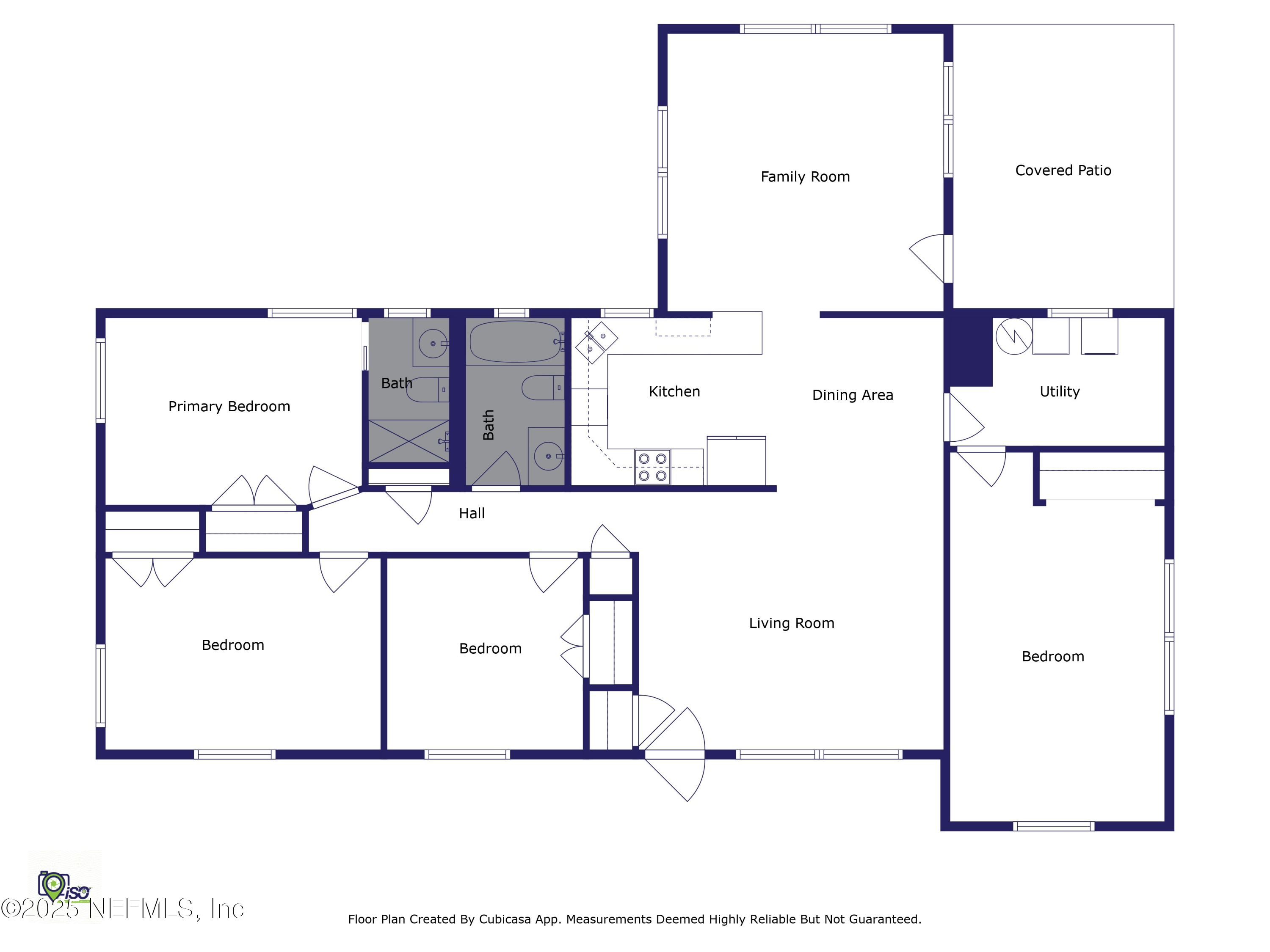
This lovingly cared for 4 bedroom, 2 bath home sits on just over an acre and has been meticulously maintained inside and out. With a freshly painted exterior and interior, a durable metal roof, and a 1 car garage with additional space for a riding mower, this home is truly move-in ready.

Located just off Silver Lake, homeowners can enjoy access through the Hudson Recreation Club for only $350/year. The club features 350 feet of lakefront, grills, bathrooms, floating and regular docks, six pavilions with picnic tables, a camping area with fire pits, a boat ramp, swimming area, and playground; perfect for year-round enjoyment.

Whether you're looking for a permanent residence or a vacation retreat, this property offers the best of both worlds: peaceful living with the bonus of lake life right at your fingertips.

Overview

Property Status
Sold
Lot Size
1.03 Acres
MLS ID
2109397
Property Type
Residential
Year Built
1964

Features & Amenities

Architecture Styles
Ranch
Stories
1
Garage Spaces
1.0
Water Source
Well
Utilites
Electricity Connected
Roof
Metal
Lot Features
Cul-De-Sac, Dead End Street, Few Trees
Parking
Additional Parking, Detached, Garage, Garage Door Opener
Heat Type
Central
Air Conditioning
Central Air
Laundry Room
In Unit, Lower Level
Appliances
Dishwasher, Dryer, Electric Oven, Microwave, Refrigerator, Washer
Other Interior Features
Ceiling Fan(s), Primary Bathroom - Shower No Tub, Primary Downstairs, Vaulted Ceiling(s)
Sewer
Septic Tank
Sales Price
$290,000
Real Estate Tax
$3,200/yr

Downloads

111 SUNSET Lane

Schedule a Tour

We would love to help you see this beautiful home! As a full-service brokerage, we can help you tour. Please submit an offer, and answer questions about the buying process.

Thank you

for your interest in 111 SUNSET Lane, Palatka, FL 32177

111 SUNSET Lane
Navigate

I'm Interested In

111 SUNSET Lane

or Contact

Browse Our

Exclusive Properties

  • 6043 US HIGHWAY 17 For Sale

    $3,600,000

    6043 US HIGHWAY 17, Green Cove Springs, FL 32043

    • 4,345 Sq.Ft.
  • 205 SOPHIA Terrace, St. Augustine For Sale

    $2,500,000

    205 SOPHIA Terrace, St. Augustine, St Augustine, FL 32095

    • 4 Beds
    • 4 Baths
    • 4,737 Sq.Ft.
  • 5705 COUNTY ROAD 208, C, St. Augustine Unit: C For Sale

    $1,300,000

    5705 COUNTY ROAD 208 C, St. Augustine Unit: C, St Augustine, FL 32092

    • 3 Beds
    • 1 Bath
    • 2,490 Sq.Ft.
  • 5705 COUNTY ROAD 208, St. Augustine For Sale

    $1,300,000

    5705 COUNTY ROAD 208, St. Augustine, St Augustine, FL 32092

  • 273 REDFISH CREEK Drive, St. Augustine For Sale

    $985,000

    273 REDFISH CREEK Drive, St. Augustine, St Augustine, FL 32095

    • 4 Beds
    • 4 Baths
    • 2,535 Sq.Ft.
  • 96014 ENCLAVE For Sale

    $835,000

    96014 ENCLAVE MANOR, Fernandina Beach, FL 32034

    • 3 Beds
    • 3 Baths
    • 2,113 Sq.Ft.
  • 96014 ENCLAVE Manor For Sale

    $835,000

    96014 ENCLAVE Manor, Fernandina Beach, FL 32034

    • 3 Beds
    • 3 Baths
    • 2,113 Sq.Ft.
  • 253 Parkwood Cir For Sale

    $800,000

    253 Parkwood Cir, St Augustine, FL 32086

    • 4 Beds
    • 3 Baths
    • 2,685 Sq.Ft.
  • 253 PARKWOOD Circle, St. Augustine For Sale

    $800,000

    253 PARKWOOD Circle, St. Augustine, St Augustine, FL 32086

    • 4 Beds
    • 3 Baths
    • 2,685 Sq.Ft.
  • 3315 ATLANTIC Avenue 806 For Sale

    $765,000

    3315 S ATLANTIC Avenue 806, Daytona Beach Shores, FL 32118

    • 3 Beds
    • 3 Baths
    • 2,233 Sq.Ft.
  • 3315 S ATLANTIC AVENUE #806 For Sale

    $765,000

    3315 S ATLANTIC AVENUE #806, DAYTONA BEACH SHORES, FL 32118

    • 3 Beds
    • 3 Baths
    • 2,233 Sq.Ft.
  • 3732 BERENSTAIN Drive, St. Augustine For Sale

    $745,000

    3732 BERENSTAIN Drive, St. Augustine, St Augustine, FL 32092

    • 4 Beds
    • 3 Baths
    • 2,914 Sq.Ft.
  • 12114 GRAND PINE Drive Pending

    $650,000

    12114 GRAND PINE Drive, Jacksonville, FL 32224

    • 3 Beds
    • 2 Baths
    • 2,228 Sq.Ft.
  • 110 FAWN FIELD Lane, St. Augustine Active Under Contract

    $600,000

    110 FAWN FIELD Lane, St. Augustine, St Augustine, FL 32092

    • 3 Beds
    • 3 Baths
    • 2,275 Sq.Ft.
  • 616 W 16TH Street, St. Augustine Active Under Contract

    $575,000

    616 W 16TH Street, St. Augustine, St Augustine, FL 32080

    • 3 Beds
    • 2 Baths
    • 1,100 Sq.Ft.
  • 10040 SADDLE GATE Court Active Under Contract

    $570,000

    10040 SADDLE GATE Court, Jacksonville, FL 32219

    • 4 Beds
    • 4 Baths
    • 2,932 Sq.Ft.
  • 85110 SOUTHERN CREEK Boulevard For Sale

    $550,000

    85110 SOUTHERN CREEK Boulevard, Fernandina Beach, FL 32034

    • 4 Beds
    • 4 Baths
    • 2,707 Sq.Ft.
  • 2077 BRIGHTON BAY Trail Active Under Contract

    $525,000

    2077 BRIGHTON BAY Trail, Jacksonville, FL 32246

    • 3 Beds
    • 2 Baths
    • 1,780 Sq.Ft.
  • 5 OCEAN CREST Way, 1411 For Sale

    $525,000

    5 OCEAN CREST Way 1411, Palm Coast, FL 32137

    • 3 Beds
    • 2 Baths
    • 1,696 Sq.Ft.
  • 5 OCEAN CREST WAY #1411 For Sale

    $525,000

    5 OCEAN CREST WAY #1411, PALM COAST, FL 32137

    • 3 Beds
    • 2 Baths
    • 1,696 Sq.Ft.
  • 0 DUNNS CREEK RD For Sale

    $500,000

    0 DUNNS CREEK Road, Satsuma, FL 32189

  • 6300 A1A S, B31TH, St. Augustine Unit: B31TH For Sale

    $500,000

    6300 A1A S B31TH, St. Augustine Unit: B31TH, St Augustine, FL 32080

    • 3 Beds
    • 3 Baths
    • 1,525 Sq.Ft.
  • 7870 A1A S, 206, St. Augustine Unit: 206 Active Under Contract

    $500,000

    7870 A1A S 206, St. Augustine Unit: 206, St Augustine, FL 32080

    • 2 Beds
    • 2 Baths
    • 1,200 Sq.Ft.
  • 961 W TENNESSEE Trace For Sale

    $500,000

    961 W TENNESSEE Trace, Jacksonville, FL 32259

    • 4 Beds
    • 2 Baths
    • 2,299 Sq.Ft.
  • 94300 DUCK LAKE For Sale

    $475,000

    94300 DUCK LAKE DRIVE, Fernandina Beach, FL 32034

    • 3 Beds
    • 3 Baths
    • 2,099 Sq.Ft.
  • 94300 DUCK LAKE Drive For Sale

    $475,000

    94300 DUCK LAKE Drive, Fernandina Beach, FL 32034

    • 3 Beds
    • 3 Baths
    • 2,099 Sq.Ft.
  • 9605 US HIGHWAY 1, St. Augustine Pending

    $455,000

    9605 US HIGHWAY 1 S, St. Augustine, St Augustine, FL 32086

    • 3 Beds
    • 2 Baths
    • 1,656 Sq.Ft.
  • 2238 NW 16TH AVE For Sale

    $450,000

    2238 NW 16TH AVE, GAINESVILLE, FL 32605

    • 3 Beds
    • 3 Baths
    • 2,137 Sq.Ft.
  • 28 RIACHUELO Lane, St. Augustine For Sale

    $450,000

    28 RIACHUELO Lane, St. Augustine, St Augustine, FL 32095

    • 4 Beds
    • 2 Baths
    • 1,858 Sq.Ft.
  • 75837 PONDSIDE LANE For Sale

    $435,000

    75837 PONDSIDE LANE, Yulee, FL 32097

    • 3 Beds
    • 3 Baths
    • 2,006 Sq.Ft.
  • 114 AMBERWOOD Drive, St. Augustine For Sale

    $425,000

    114 AMBERWOOD Drive, St. Augustine, St Augustine, FL 32092

    • 2 Beds
    • 3 Baths
    • 1,579 Sq.Ft.
  • 11036 CASTLEMAIN Circle E For Sale

    $409,000

    11036 CASTLEMAIN Circle E, Jacksonville, FL 32256

    • 2 Beds
    • 3 Baths
    • 1,686 Sq.Ft.
  • 38 RED MILL DR For Sale

    $400,000

    38 RED MILL DR, PALM COAST, FL 32164

    • 4 Beds
    • 3 Baths
    • 2,976 Sq.Ft.
  • 38 RED MILL Drive For Sale

    $400,000

    38 RED MILL Drive, Palm Coast, FL 32164

    • 4 Beds
    • 3 Baths
    • 2,976 Sq.Ft.
  • 2772 PEBBLERIDGE Court For Sale

    $391,000

    2772 PEBBLERIDGE Court, Orange Park, FL 32065

    • 4 Beds
    • 3 Baths
    • 2,420 Sq.Ft.
  • 2480 BENTWATER Drive W Active Under Contract

    $375,000

    2480 BENTWATER Drive W, Jacksonville, FL 32246

    • 3 Beds
    • 2 Baths
    • 1,372 Sq.Ft.
  • 13245 AVERY PARK Lane For Sale

    $360,000

    13245 AVERY PARK Lane, Jacksonville, FL 32218

    • 4 Beds
    • 2 Baths
    • 1,997 Sq.Ft.
  • 850 E Watson Rd For Sale

    $350,000

    850 E Watson Rd, St Augustine, FL 32086

    • 3 Beds
    • 2 Baths
    • 1,692 Sq.Ft.
  • 75045 PONDSIDE LANE For Sale

    $345,000

    75045 PONDSIDE LANE, Yulee, FL 32097

    • 2 Beds
    • 2 Baths
    • 1,544 Sq.Ft.
  • 51 JAVA Lane, St. Augustine For Sale

    $344,900

    51 JAVA Lane, St. Augustine, St Augustine, FL 32092

    • 3 Beds
    • 3 Baths
    • 1,687 Sq.Ft.
  • 6767 EVENING DUSK Drive For Sale

    $340,000

    6767 EVENING DUSK Drive, Jacksonville, FL 32244

    • 4 Beds
    • 3 Baths
    • 2,006 Sq.Ft.
  • 11047 SANTA FE Street E For Sale

    $325,000

    11047 SANTA FE Street E, Jacksonville, FL 32246

    • 3 Beds
    • 2 Baths
    • 1,315 Sq.Ft.
  • 245 AMISTAD Drive, St. Augustine For Sale

    $315,000

    245 AMISTAD Drive, St. Augustine, St Augustine, FL 32086

    • 3 Beds
    • 3 Baths
    • 1,776 Sq.Ft.
  • 45077 CLEMMONS Road For Sale

    $295,000

    45077 CLEMMONS Road, Callahan, FL 32011

    • 3 Beds
    • 2 Baths
    • 1,152 Sq.Ft.
  • 5663 GREENLAND Road, 1201 For Sale

    $274,900

    5663 GREENLAND Road 1201, Jacksonville, FL 32258

    • 3 Beds
    • 3 Baths
    • 1,531 Sq.Ft.
  • 2946 ROSSELLE Street For Sale

    $274,000

    2946 ROSSELLE Street, Jacksonville, FL 32205

    • 3 Beds
    • 3 Baths
    • 1,034 Sq.Ft.
  • 10490 NE 120TH ST Pending

    $250,000

    10492 NE 120TH ST, ARCHER, FL 32618

    • 4 Beds
    • 2 Baths
    • 2,280 Sq.Ft.
  • 10768 IRONSTONE Drive N For Sale

    $247,000

    10768 IRONSTONE Drive N, Jacksonville, FL 32246

    • 3 Beds
    • 2 Baths
    • 1,199 Sq.Ft.
  • 206 W 16th Street For Sale

    $230,000

    206 W 16TH Street, Jacksonville, FL 32206

    • 4 Beds
    • 2 Baths
    • 1,726 Sq.Ft.
  • 86472 SHORTLINE Circle For Sale

    $229,000

    86472 SHORTLINE Circle, Yulee, FL 32097

    • 2 Beds
    • 3 Baths
    • 1,168 Sq.Ft.
View All Properties

Follow Us On Instagram