Leave a Message

Thank you for your message. We will be in touch with you shortly.

Explore Our Properties

Property Description

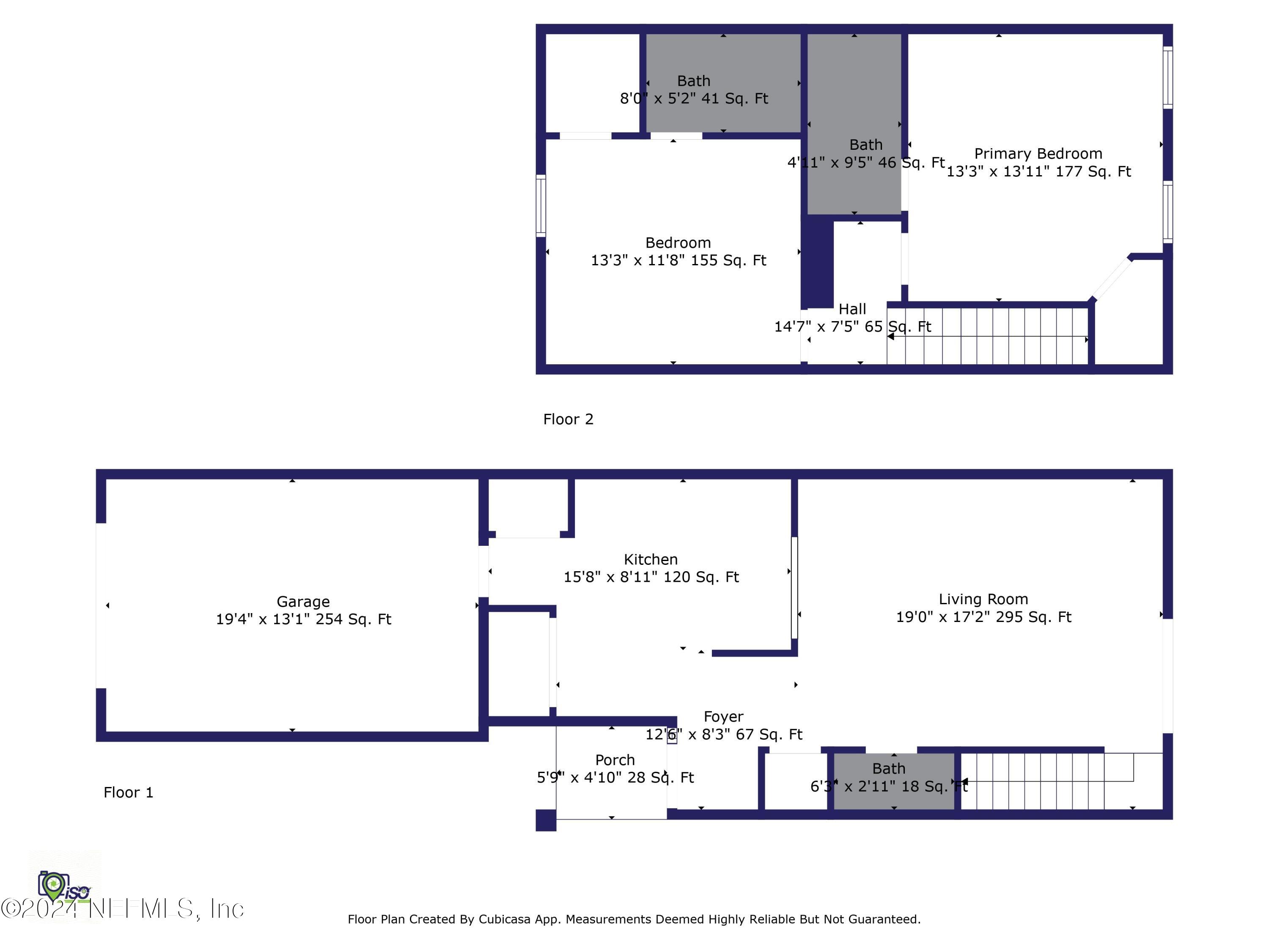
Ask about the 1% lender credit with use of preferred lender! Welcome home to this updated and well maintained townhome in Stonehaven, a community located in Aberdeen in the highly desired upper St. John's County. This 2 bedroom, 2.5 bath, 2 story townhome is welcoming and features a new roof, water heater, paint, flooring upstairs & window screens. Stucco to be updated/repainted in December! LG washer/dryer can be included with the right offer. This is a true move in ready unit! You'll enjoy the evenings and mornings with water views from your backyard. This is located just minutes from the Aberdeen amenity center, which you will have access to! Whether you're interested in the top notch St John's schools or are intrigued by the vibrant growing area, come experience this townhome for yourself and send us an offer today!

Overview

Property Status
Sold
Lot Size
1,742.4 Sq.Ft.
MLS ID
2059280
Property Type
Townhouse
Year Built
2007

Features & Amenities

Architecture Styles
Traditional
View Description
Pond
Stories
2
Garage Spaces
1.0
Water Source
Public
Utilites
Cable Available, Electricity Connected, Sewer Connected, Water Connected
Roof
Shingle
Lot Features
Cleared, Few Trees, Sprinklers In Front, Sprinklers In Rear
Parking
Attached, Garage, Garage Door Opener
Heat Type
Central, Electric
Air Conditioning
Central Air, Electric
Laundry Room
In Unit
Appliances
Dishwasher, Dryer, Electric Oven, Electric Range, Microwave, Refrigerator, Washer
Other Interior Features
Breakfast Bar, Ceiling Fan(s), Eat-in Kitchen, Entrance Foyer, Open Floorplan, Pantry, Primary Bathroom - Shower No Tub, Walk-In Closet(s)
Sewer
Public Sewer
HOA Amenities
Pool, Clubhouse, Fitness Center
Security Features
Fire Sprinkler System, Firewall(s), Smoke Detector(s)
Sales Price
$242,000
Real Estate Tax
$3,553/yr
HOA
$160/mo

Downloads

113 LEESE Drive

Schedule a Tour

We would love to help you see this beautiful home! As a full-service brokerage, we can help you tour. Please submit an offer, and answer questions about the buying process.

Thank you

for your interest in 113 LEESE Drive, St. Johns, St Johns, FL 32259

113 LEESE Drive
Navigate

I'm Interested In

113 LEESE Drive

or
  • CallChristopher Snow

    License #SL3077177

    (904) 329-7895
  • Browse Our

    Exclusive Properties

    • 1402 WILKIES POINT Road For Sale

      $4,000,000

      1402 WILKIES POINT Road, Green Cove Springs, FL 32043

      • 5 Beds
      • 7 Baths
      • 7,243.95 Sq.Ft.
    • 6043 US HIGHWAY 17 Active Under Contract

      $3,600,000

      6043 US HIGHWAY 17, Green Cove Springs, FL 32043

      • 4,345 Sq.Ft.
    • 205 SOPHIA Terrace, St. Augustine For Sale

      $2,250,000

      205 SOPHIA Terrace, St. Augustine, St Augustine, FL 32095

      • 4 Beds
      • 4 Baths
      • 4,737 Sq.Ft.
    • 1570 SCOTTRIDGE Lane, St. Johns For Sale

      $1,800,000

      1570 SCOTTRIDGE Lane, St. Johns, St Johns, FL 32259

      • 6 Beds
      • 6 Baths
      • 5,181 Sq.Ft.
    • 1885 STATE ROAD 13 N For Sale

      $1,607,960

      1885 STATE ROAD 13 N, Fruit Cove, FL 32259

      • 4 Beds
      • 5 Baths
      • 3,488 Sq.Ft.
    • 145 SPANISH MARSH Drive, St. Augustine For Sale

      $1,450,000

      145 SPANISH MARSH Drive, St. Augustine, St Augustine, FL 32095

      • 5 Beds
      • 4 Baths
      • 4,515 Sq.Ft.
    • 8179 WOODPECKER Trail For Sale

      $1,375,000

      8179 WOODPECKER Trail, Jacksonville, FL 32256

      • 4 Beds
      • 4 Baths
      • 4,379 Sq.Ft.
    • 16 TORCIDO Boulevard, St. Augustine For Sale

      $900,000

      16 TORCIDO Boulevard, St. Augustine, St Augustine, FL 32095

      • 5 Beds
      • 4 Baths
      • 3,370 Sq.Ft.
    • 442 REFLECTIONS Avenue For Sale

      $850,000

      442 REFLECTIONS Avenue, Ponte Vedra, FL 32081

      • 4 Beds
      • 3 Baths
      • 2,389 Sq.Ft.
    • 253 Parkwood Cir For Sale

      $800,000

      253 Parkwood Cir, St Augustine, FL 32086

      • 4 Beds
      • 3 Baths
      • 2,685 Sq.Ft.
    • 253 PARKWOOD Circle, St. Augustine For Sale

      $800,000

      253 PARKWOOD Circle, St. Augustine, St Augustine, FL 32086

      • 4 Beds
      • 3 Baths
      • 2,685 Sq.Ft.
    • 96014 ENCLAVE Manor For Sale

      $799,000

      96014 ENCLAVE Manor, Fernandina Beach, FL 32034

      • 3 Beds
      • 3 Baths
      • 2,113 Sq.Ft.
    • 3315 S ATLANTIC AVENUE #806 For Sale

      $765,000

      3315 S ATLANTIC AVENUE #806, DAYTONA BEACH SHORES, FL 32118

      • 3 Beds
      • 3 Baths
      • 2,233 Sq.Ft.
    • 3315 ATLANTIC Avenue 806 For Sale

      $755,000

      3315 S ATLANTIC Avenue 806, Daytona Beach Shores, FL 32118

      • 3 Beds
      • 3 Baths
      • 2,233 Sq.Ft.
    • 10036 WATERMARK Lane W For Sale

      $699,000

      10036 WATERMARK Lane W, Jacksonville, FL 32256

      • 4 Beds
      • 4 Baths
      • 3,169 Sq.Ft.
    • 153 AUGUSTINE ISLAND Way, St. Augustine Pending

      $645,000

      153 AUGUSTINE ISLAND Way, St. Augustine, St Augustine, FL 32095

      • 4 Beds
      • 4 Baths
      • 3,214 Sq.Ft.
    • 82 LATROBE Avenue, St. Augustine Active Under Contract

      $615,000

      82 LATROBE Avenue, St. Augustine, St Augustine, FL 32095

      • 4 Beds
      • 3 Baths
      • 2,954 Sq.Ft.
    • 21 MAHOGANY Way For Sale

      $600,000

      21 MAHOGANY Way, Palm Coast, FL 32164

      • 4 Beds
      • 4 Baths
      • 2,790 Sq.Ft.
    • 108 OCEANS CIR For Sale

      $569,000

      108 OCEANS CIR, DAYTONA BEACH, FL 32118

      • 3 Beds
      • 3 Baths
      • 1,296 Sq.Ft.
    • 108 OCEANS Circle For Sale

      $569,000

      108 OCEANS Circle 108, Daytona Beach Shores, FL 32118

      • 3 Beds
      • 3 Baths
      • 2,118 Sq.Ft.
    • 637 WATERVALE Drive, St. Augustine For Sale

      $550,000

      637 WATERVALE Drive, St. Augustine, St Augustine, FL 32092

      • 4 Beds
      • 3 Baths
      • 2,204 Sq.Ft.
    • 103 CORONADO Street, St. Augustine For Sale

      $525,000

      103 CORONADO Street, St. Augustine, St Augustine, FL 32080

      • 4 Beds
      • 3 Baths
      • 1,675 Sq.Ft.
    • 5 OCEAN CREST Way, 1411 For Sale

      $500,000

      5 OCEAN CREST Way 1411, Palm Coast, FL 32137

      • 3 Beds
      • 2 Baths
      • 1,696 Sq.Ft.
    • 6300 A1A S, B31TH, St. Augustine Unit: B31TH For Sale

      $490,000

      6300 A1A S B31TH, St. Augustine Unit: B31TH, St Augustine, FL 32080

      • 3 Beds
      • 3 Baths
      • 1,525 Sq.Ft.
    • 4050 WATERWAY Court Active Under Contract

      $485,000

      4050 WATERWAY Court, Jacksonville, FL 32223

      • 3 Beds
      • 2 Baths
      • 2,145 Sq.Ft.
    • 187 BRADFORD LAKE Circle For Sale

      $475,000

      187 BRADFORD LAKE Circle, Jacksonville, FL 32218

      • 4 Beds
      • 4 Baths
      • 3,076 Sq.Ft.
    • 94300 DUCK LAKE For Sale

      $475,000

      94300 DUCK LAKE DRIVE, Fernandina Beach, FL 32034

      • 3 Beds
      • 3 Baths
      • 2,099 Sq.Ft.
    • 94300 DUCK LAKE Drive For Sale

      $475,000

      94300 DUCK LAKE Drive, Fernandina Beach, FL 32034

      • 3 Beds
      • 3 Baths
      • 2,099 Sq.Ft.
    • 653 NARVAREZ Avenue, St. Augustine Active Under Contract

      $469,000

      653 NARVAREZ Avenue, St. Augustine, St Augustine, FL 32084

      • 4 Beds
      • 3 Baths
      • 2,445 Sq.Ft.
    • 3306 LEWIS SPEEDWAY, St. Augustine For Sale

      $425,000

      3306 LEWIS SPEEDWAY, St. Augustine, St Augustine, FL 32084

      • 3 Beds
      • 3 Baths
      • 1,933 Sq.Ft.
    • 9936 PAVNES CREEK Drive Pending

      $420,000

      9936 PAVNES CREEK Drive, Jacksonville, FL 32222

      • 4 Beds
      • 3 Baths
      • 2,213 Sq.Ft.
    • 218 CAMINHA Road, St. Augustine For Sale

      $409,000

      218 CAMINHA Road, St. Augustine, St Augustine, FL 32084

      • 4 Beds
      • 3 Baths
      • 2,231 Sq.Ft.
    • 0 DUNNS CREEK RD For Sale

      $400,000

      0 DUNNS CREEK Road, Satsuma, FL 32189

    • 418 NW 27TH TER For Sale

      $395,000

      418 NW 27TH TER, GAINESVILLE, FL 32607

      • 4 Beds
      • 2 Baths
      • 1,340 Sq.Ft.
    • 38 RED MILL DR For Sale

      $380,000

      38 RED MILL DR, PALM COAST, FL 32164

      • 4 Beds
      • 3 Baths
      • 2,976 Sq.Ft.
    • 38 RED MILL Drive For Sale

      $380,000

      38 RED MILL Drive, Palm Coast, FL 32164

      • 4 Beds
      • 3 Baths
      • 2,976 Sq.Ft.
    • 15 ROYALE Lane For Sale

      $335,000

      15 ROYALE Lane, Palm Coast, FL 32164

      • 3 Beds
      • 2 Baths
      • 1,783 Sq.Ft.
    • 3419 LAWTON Place Active Under Contract

      $335,000

      3419 LAWTON Place, Green Cove Springs, FL 32043

      • 4 Beds
      • 2 Baths
      • 1,861 Sq.Ft.
    • 3955 PEACH Drive Active Under Contract

      $335,000

      3955 PEACH Drive, Jacksonville, FL 32246

      • 3 Beds
      • 2 Baths
      • 1,707 Sq.Ft.
    • 6767 EVENING DUSK Drive For Sale

      $335,000

      6767 EVENING DUSK Drive, Jacksonville, FL 32244

      • 4 Beds
      • 3 Baths
      • 2,006 Sq.Ft.
    • 75045 PONDSIDE LANE Pending

      $335,000

      75045 PONDSIDE LANE, Yulee, FL 32097

      • 2 Beds
      • 2 Baths
      • 1,544 Sq.Ft.
    • 75209 CHELSEA GARDEN Way For Sale

      $335,000

      75209 CHELSEA GARDEN Way, Yulee, FL 32097

      • 3 Beds
      • 2 Baths
      • 1,864 Sq.Ft.
    • 223 STARBOARD Drive Pending

      $315,000

      223 STARBOARD Drive, Flagler Beach, FL 32136

      • 2 Beds
      • 2 Baths
      • 1,378 Sq.Ft.
    • 170 SECRETARY Trail Active Under Contract

      $300,000

      170 SECRETARY Trail, Palm Coast, FL 32164

      • 3 Beds
      • 2 Baths
      • 1,677 Sq.Ft.
    • 245 AMISTAD Drive, St. Augustine For Sale

      $289,000

      245 AMISTAD Drive, St. Augustine, St Augustine, FL 32086

      • 3 Beds
      • 3 Baths
      • 1,776 Sq.Ft.
    • 3907 ADIROLF Road Active Under Contract

      $275,000

      3907 ADIROLF Road, Jacksonville, FL 32207

      • 3 Beds
      • 2 Baths
      • 1,254 Sq.Ft.
    • 926 NIGHTINGALE Road Active Under Contract

      $275,000

      926 NIGHTINGALE Road, Jacksonville, FL 32216

      • 3 Beds
      • 1 Bath
      • 1,437 Sq.Ft.
    • 2352 SCENIC VIEW Court Active Under Contract

      $265,000

      2352 SCENIC VIEW Court, Jacksonville, FL 32218

      • 3 Beds
      • 2 Baths
      • 1,351 Sq.Ft.
    • 206 W 16th Street For Sale

      $230,000

      206 W 16TH Street, Jacksonville, FL 32206

      • 4 Beds
      • 2 Baths
      • 1,726 Sq.Ft.
    • 104 CREEK Lane Active Under Contract

      $225,000

      104 CREEK Lane, Palatka, FL 32177

      • 2 Beds
      • 2 Baths
      • 1,152 Sq.Ft.
    View All Properties

    Follow Us On Instagram