Leave a Message

Thank you for your message. We will be in touch with you shortly.

Explore Our Properties

Property Description

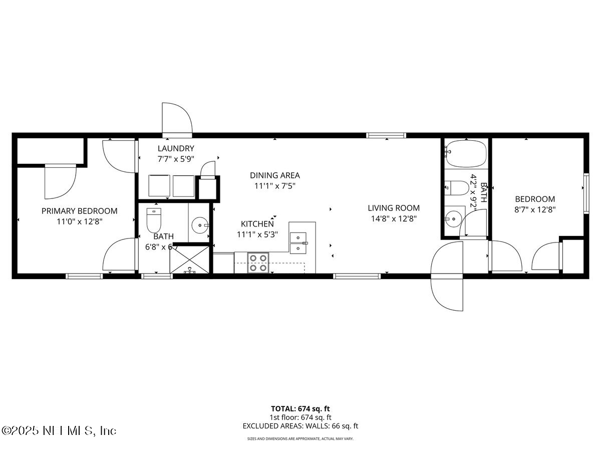
AWESOME OPPORTUNITY - This 2022-built 2-bedroom, 2-bath manufactured home offers 780 sq ft of comfortable living space and sits on over a quarter acre. Conveniently located between I-95 and historic downtown St. Augustine, this property is ideal for first-time buyers or investors seeking a strong rental opportunity. Enjoy modern living, a spacious lot, and easy access to shopping, dining, beaches, and major roadways.

Overview

Property Status
Active Under Contract
Lot Size
0.32 Acres
MLS ID
2119251
Property Type
Manufactured-Mobile
Year Built
2022

Features & Amenities

Architecture Styles
Other
Stories
1
Water Source
Other
Utilites
Electricity Connected, Water Connected
Parking
Other
Heat Type
Central
Air Conditioning
Central Air
Appliances
Dryer, Electric Cooktop, Electric Oven, Refrigerator
Sewer
Unknown
Elementary School
Webster
Middle School
Murray
High School
Tocoi Creek
Sales Price
$205,000
Real Estate Tax
$615/yr

Downloads

2670 PLEASURE Lane, St. Augustine

Schedule a Tour

We would love to help you see this beautiful home! As a full-service brokerage, we can help you tour. Please submit an offer, and answer questions about the buying process.

Thank you

for your interest in 2670 PLEASURE Lane, St. Augustine, St Augustine, FL 32084

2670 PLEASURE Lane, St. Augustine
Navigate

Mortgage Calculator

Estimate your monthly mortgage payment, including the principal and interest, property taxes, and HOA. Adjust the values to generate a more accurate rate.
$0,000 Your Payment 20 15 65
$0,000 Your Payment

I'm Interested In

2670 PLEASURE Lane, St. Augustine

or Contact

Browse Our

Exclusive Properties

  • 1402 WILKIES POINT Road For Sale

    $4,000,000

    1402 WILKIES POINT Road, Green Cove Springs, FL 32043

    • 5 Beds
    • 7 Baths
    • 7,243.95 Sq.Ft.
  • 6043 US HIGHWAY 17 Active Under Contract

    $3,600,000

    6043 US HIGHWAY 17, Green Cove Springs, FL 32043

    • 4,345 Sq.Ft.
  • 205 SOPHIA Terrace, St. Augustine For Sale

    $2,400,000

    205 SOPHIA Terrace, St. Augustine, St Augustine, FL 32095

    • 4 Beds
    • 4 Baths
    • 4,737 Sq.Ft.
  • 1885 STATE ROAD 13 N For Sale

    $1,607,960

    1885 STATE ROAD 13 N, Fruit Cove, FL 32259

    • 4 Beds
    • 5 Baths
    • 3,488 Sq.Ft.
  • 145 SPANISH MARSH Drive, St. Augustine For Sale

    $1,500,000

    145 SPANISH MARSH Drive, St. Augustine, St Augustine, FL 32095

    • 5 Beds
    • 4 Baths
    • 4,515 Sq.Ft.
  • 5705 COUNTY ROAD 208, C, St. Augustine Unit: C Active Under Contract

    $1,300,000

    5705 COUNTY ROAD 208 C, St. Augustine Unit: C, St Augustine, FL 32092

    • 3 Beds
    • 1 Bath
    • 2,490 Sq.Ft.
  • 5705 COUNTY ROAD 208, St. Augustine Active Under Contract

    $1,300,000

    5705 COUNTY ROAD 208, St. Augustine, St Augustine, FL 32092

  • 16 TORCIDO Boulevard, St. Augustine For Sale

    $900,000

    16 TORCIDO Boulevard, St. Augustine, St Augustine, FL 32095

    • 5 Beds
    • 4 Baths
    • 3,370 Sq.Ft.
  • 442 REFLECTIONS Avenue For Sale

    $850,000

    442 REFLECTIONS Avenue, Ponte Vedra, FL 32081

    • 4 Beds
    • 3 Baths
    • 2,389 Sq.Ft.
  • 96014 ENCLAVE For Sale

    $825,000

    96014 ENCLAVE MANOR, Fernandina Beach, FL 32034

    • 3 Beds
    • 3 Baths
    • 2,113 Sq.Ft.
  • 96014 ENCLAVE Manor For Sale

    $825,000

    96014 ENCLAVE Manor, Fernandina Beach, FL 32034

    • 3 Beds
    • 3 Baths
    • 2,113 Sq.Ft.
  • 253 Parkwood Cir For Sale

    $800,000

    253 Parkwood Cir, St Augustine, FL 32086

    • 4 Beds
    • 3 Baths
    • 2,685 Sq.Ft.
  • 253 PARKWOOD Circle, St. Augustine For Sale

    $800,000

    253 PARKWOOD Circle, St. Augustine, St Augustine, FL 32086

    • 4 Beds
    • 3 Baths
    • 2,685 Sq.Ft.
  • 3315 S ATLANTIC AVENUE #806 For Sale

    $765,000

    3315 S ATLANTIC AVENUE #806, DAYTONA BEACH SHORES, FL 32118

    • 3 Beds
    • 3 Baths
    • 2,233 Sq.Ft.
  • 3315 ATLANTIC Avenue 806 For Sale

    $755,000

    3315 S ATLANTIC Avenue 806, Daytona Beach Shores, FL 32118

    • 3 Beds
    • 3 Baths
    • 2,233 Sq.Ft.
  • 10036 WATERMARK Lane W For Sale

    $720,000

    10036 WATERMARK Lane W, Jacksonville, FL 32256

    • 4 Beds
    • 4 Baths
    • 3,169 Sq.Ft.
  • 153 AUGUSTINE ISLAND Way, St. Augustine For Sale

    $645,000

    153 AUGUSTINE ISLAND Way, St. Augustine, St Augustine, FL 32095

    • 4 Beds
    • 4 Baths
    • 3,214 Sq.Ft.
  • 82 LATROBE Avenue, St. Augustine For Sale

    $615,000

    82 LATROBE Avenue, St. Augustine, St Augustine, FL 32095

    • 4 Beds
    • 3 Baths
    • 2,954 Sq.Ft.
  • 21 MAHOGANY Way For Sale

    $600,000

    21 MAHOGANY Way, Palm Coast, FL 32164

    • 4 Beds
    • 4 Baths
    • 2,790 Sq.Ft.
  • 21 MAHOGANY WAY For Sale

    $600,000

    21 MAHOGANY WAY, PALM COAST, FL 32164

    • 4 Beds
    • 4 Baths
    • 2,790 Sq.Ft.
  • 108 OCEANS CIR For Sale

    $569,000

    108 OCEANS CIR, DAYTONA BEACH, FL 32118

    • 3 Beds
    • 3 Baths
    • 1,296 Sq.Ft.
  • 108 OCEANS Circle For Sale

    $569,000

    108 OCEANS Circle 108, Daytona Beach Shores, FL 32118

    • 3 Beds
    • 3 Baths
    • 2,118 Sq.Ft.
  • 637 WATERVALE Drive, St. Augustine For Sale

    $550,000

    637 WATERVALE Drive, St. Augustine, St Augustine, FL 32092

    • 4 Beds
    • 3 Baths
    • 2,204 Sq.Ft.
  • 103 CORONADO Street, St. Augustine For Sale

    $540,000

    103 CORONADO Street, St. Augustine, St Augustine, FL 32080

    • 4 Beds
    • 3 Baths
    • 1,675 Sq.Ft.
  • 5 OCEAN CREST Way, 1411 For Sale

    $525,000

    5 OCEAN CREST Way 1411, Palm Coast, FL 32137

    • 3 Beds
    • 2 Baths
    • 1,696 Sq.Ft.
  • 5 OCEAN CREST WAY #1411 For Sale

    $525,000

    5 OCEAN CREST WAY #1411, PALM COAST, FL 32137

    • 3 Beds
    • 2 Baths
    • 1,696 Sq.Ft.
  • 15 ZANCARA Street, St. Augustine Active Under Contract

    $500,000

    15 ZANCARA Street, St. Augustine, St Augustine, FL 32084

    • 4 Beds
    • 4 Baths
    • 2,492 Sq.Ft.
  • 6300 A1A S, B31TH, St. Augustine Unit: B31TH For Sale

    $490,000

    6300 A1A S B31TH, St. Augustine Unit: B31TH, St Augustine, FL 32080

    • 3 Beds
    • 3 Baths
    • 1,525 Sq.Ft.
  • 4050 WATERWAY Court Active Under Contract

    $485,000

    4050 WATERWAY Court, Jacksonville, FL 32223

    • 3 Beds
    • 2 Baths
    • 2,145 Sq.Ft.
  • 187 BRADFORD LAKE Circle For Sale

    $475,000

    187 BRADFORD LAKE Circle, Jacksonville, FL 32218

    • 4 Beds
    • 4 Baths
    • 3,076 Sq.Ft.
  • 94300 DUCK LAKE For Sale

    $475,000

    94300 DUCK LAKE DRIVE, Fernandina Beach, FL 32034

    • 3 Beds
    • 3 Baths
    • 2,099 Sq.Ft.
  • 94300 DUCK LAKE Drive For Sale

    $475,000

    94300 DUCK LAKE Drive, Fernandina Beach, FL 32034

    • 3 Beds
    • 3 Baths
    • 2,099 Sq.Ft.
  • 649 NAUTICAL Way, St. Augustine Active Under Contract

    $453,000

    649 NAUTICAL Way, St. Augustine, St Augustine, FL 32080

    • 3 Beds
    • 2 Baths
    • 1,530 Sq.Ft.
  • 2238 NW 16TH AVE For Sale

    $430,000

    2238 NW 16TH AVE, GAINESVILLE, FL 32605

    • 3 Beds
    • 3 Baths
    • 2,137 Sq.Ft.
  • 311 LINDEN Road, St. Augustine Active Under Contract

    $425,000

    311 LINDEN Road, St. Augustine, St Augustine, FL 32086

    • 3 Beds
    • 2 Baths
    • 1,869 Sq.Ft.
  • 9936 PAVNES CREEK Drive For Sale

    $425,000

    9936 PAVNES CREEK Drive, Jacksonville, FL 32222

    • 4 Beds
    • 3 Baths
    • 2,213 Sq.Ft.
  • 218 CAMINHA Road, St. Augustine For Sale

    $409,000

    218 CAMINHA Road, St. Augustine, St Augustine, FL 32084

    • 4 Beds
    • 3 Baths
    • 2,231 Sq.Ft.
  • 0 DUNNS CREEK RD For Sale

    $400,000

    0 DUNNS CREEK Road, Satsuma, FL 32189

  • 418 NW 27TH TER For Sale

    $400,000

    418 NW 27TH TER, GAINESVILLE, FL 32607

    • 4 Beds
    • 2 Baths
    • 1,340 Sq.Ft.
  • 11036 CASTLEMAIN Circle E Pending

    $399,990

    11036 CASTLEMAIN Circle E, Jacksonville, FL 32256

    • 2 Beds
    • 3 Baths
    • 1,686 Sq.Ft.
  • 38 RED MILL DR For Sale

    $390,000

    38 RED MILL DR, PALM COAST, FL 32164

    • 4 Beds
    • 3 Baths
    • 2,976 Sq.Ft.
  • 38 RED MILL Drive For Sale

    $390,000

    38 RED MILL Drive, Palm Coast, FL 32164

    • 4 Beds
    • 3 Baths
    • 2,976 Sq.Ft.
  • 3419 LAWTON Place For Sale

    $350,000

    3419 LAWTON Place, Green Cove Springs, FL 32043

    • 4 Beds
    • 2 Baths
    • 1,861 Sq.Ft.
  • 3955 PEACH Drive For Sale

    $335,000

    3955 PEACH Drive, Jacksonville, FL 32246

    • 3 Beds
    • 2 Baths
    • 1,707 Sq.Ft.
  • 6767 EVENING DUSK Drive Active Under Contract

    $335,000

    6767 EVENING DUSK Drive, Jacksonville, FL 32244

    • 4 Beds
    • 3 Baths
    • 2,006 Sq.Ft.
  • 75045 PONDSIDE LANE For Sale

    $335,000

    75045 PONDSIDE LANE, Yulee, FL 32097

    • 2 Beds
    • 2 Baths
    • 1,544 Sq.Ft.
  • 75209 CHELSEA GARDEN Way For Sale

    $335,000

    75209 CHELSEA GARDEN Way, Yulee, FL 32097

    • 3 Beds
    • 2 Baths
    • 1,864 Sq.Ft.
  • 223 STARBOARD Drive For Sale

    $315,000

    223 STARBOARD Drive, Flagler Beach, FL 32136

    • 2 Beds
    • 2 Baths
    • 1,378 Sq.Ft.
  • 170 SECRETARY Trail Active Under Contract

    $300,000

    170 SECRETARY Trail, Palm Coast, FL 32164

    • 3 Beds
    • 2 Baths
    • 1,677 Sq.Ft.
  • 245 AMISTAD Drive, St. Augustine For Sale

    $289,000

    245 AMISTAD Drive, St. Augustine, St Augustine, FL 32086

    • 3 Beds
    • 3 Baths
    • 1,776 Sq.Ft.
View All Properties

Follow Us On Instagram