Leave a Message

Thank you for your message. We will be in touch with you shortly.

Explore Our Properties

Property Description

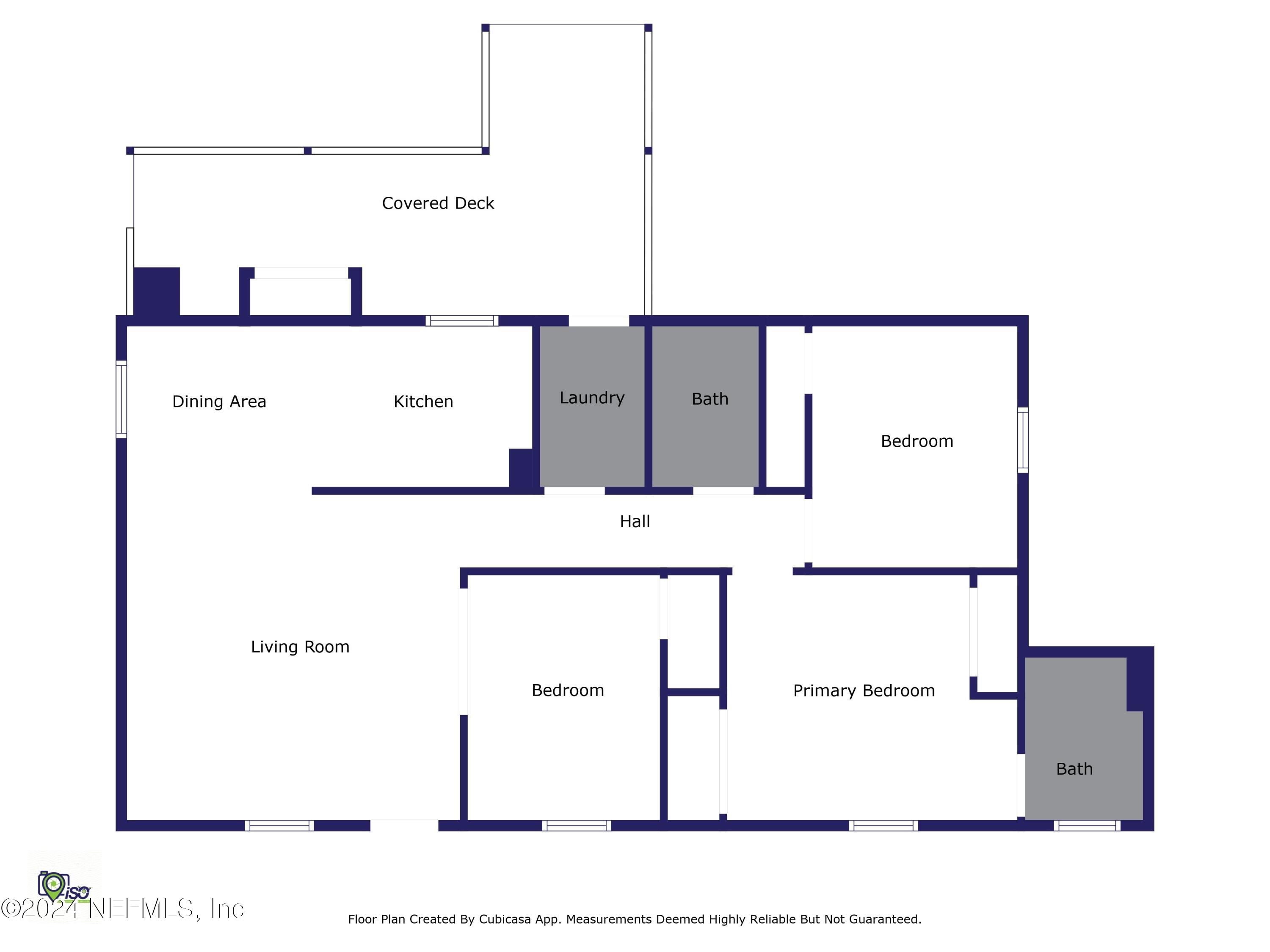
Get a 1% lender credit with use of preferred lender! *New roof coming soon* Realize your country living dream at an affordable price! 1.39 acres with no HOA! Perfect starter or investment home. 3 bed/2 bath. Fresh paint inside/out. New floors. New water heater. Artesian well, septic serviced in 2024. Home is move in ready! Come take a look and send us an offer!

Overview

Property Status
Sold
Lot Size
1.39 Acres
MLS ID
2056818
Property Type
Residential
Year Built
1998

Features & Amenities

Architecture Styles
Ranch, Traditional
View Description
Trees/Woods
Stories
1
Water Source
Private, Well
Utilites
Electricity Connected
Roof
Shingle
Lot Features
Many Trees, Wooded
Parking
Additional Parking, RV Access/Parking
Heat Type
Central, Electric
Air Conditioning
Central Air, Electric
Laundry Room
In Unit
Appliances
Dryer, Electric Oven, Electric Range, Electric Water Heater, Microwave, Refrigerator, Washer
Other Interior Features
Ceiling Fan(s), Eat-in Kitchen, Entrance Foyer, Open Floorplan, Primary Bathroom - Tub with Shower, Primary Downstairs
Sewer
Septic Tank
Other Exterior Features
Balcony, Fire Pit
Sales Price
$226,000
Real Estate Tax
$1,121/yr

Downloads

61 SORREL Street

Schedule a Tour

We would love to help you see this beautiful home! As a full-service brokerage, we can help you tour. Please submit an offer, and answer questions about the buying process.

Thank you

for your interest in 61 SORREL Street, Middleburg, FL 32068

61 SORREL Street
Navigate

I'm Interested In

61 SORREL Street

or
  • CallChristopher Snow

    License #SL3077177

    (904) 329-7895
  • Browse Our

    Exclusive Properties

    • 6043 US HIGHWAY 17 For Sale

      $3,600,000

      6043 US HIGHWAY 17, Green Cove Springs, FL 32043

      • 4,345 Sq.Ft.
    • 205 SOPHIA Terrace, St. Augustine For Sale

      $2,500,000

      205 SOPHIA Terrace, St. Augustine, St Augustine, FL 32095

      • 4 Beds
      • 4 Baths
      • 4,737 Sq.Ft.
    • 1885 STATE ROAD 13 N For Sale

      $1,607,960

      1885 STATE ROAD 13 N, Fruit Cove, FL 32259

      • 4 Beds
      • 5 Baths
      • 3,488 Sq.Ft.
    • 145 SPANISH MARSH Drive, St. Augustine For Sale

      $1,500,000

      145 SPANISH MARSH Drive, St. Augustine, St Augustine, FL 32095

      • 5 Beds
      • 4 Baths
      • 4,515 Sq.Ft.
    • 5705 COUNTY ROAD 208, C, St. Augustine Unit: C For Sale

      $1,300,000

      5705 COUNTY ROAD 208 C, St. Augustine Unit: C, St Augustine, FL 32092

      • 3 Beds
      • 1 Bath
      • 2,490 Sq.Ft.
    • 5705 COUNTY ROAD 208, St. Augustine For Sale

      $1,300,000

      5705 COUNTY ROAD 208, St. Augustine, St Augustine, FL 32092

    • 96014 ENCLAVE For Sale

      $835,000

      96014 ENCLAVE MANOR, Fernandina Beach, FL 32034

      • 3 Beds
      • 3 Baths
      • 2,113 Sq.Ft.
    • 96014 ENCLAVE Manor For Sale

      $835,000

      96014 ENCLAVE Manor, Fernandina Beach, FL 32034

      • 3 Beds
      • 3 Baths
      • 2,113 Sq.Ft.
    • 253 Parkwood Cir For Sale

      $800,000

      253 Parkwood Cir, St Augustine, FL 32086

      • 4 Beds
      • 3 Baths
      • 2,685 Sq.Ft.
    • 253 PARKWOOD Circle, St. Augustine For Sale

      $800,000

      253 PARKWOOD Circle, St. Augustine, St Augustine, FL 32086

      • 4 Beds
      • 3 Baths
      • 2,685 Sq.Ft.
    • 3315 ATLANTIC Avenue 806 For Sale

      $765,000

      3315 S ATLANTIC Avenue 806, Daytona Beach Shores, FL 32118

      • 3 Beds
      • 3 Baths
      • 2,233 Sq.Ft.
    • 3315 S ATLANTIC AVENUE #806 For Sale

      $765,000

      3315 S ATLANTIC AVENUE #806, DAYTONA BEACH SHORES, FL 32118

      • 3 Beds
      • 3 Baths
      • 2,233 Sq.Ft.
    • 3732 BERENSTAIN Drive, St. Augustine Active Under Contract

      $745,000

      3732 BERENSTAIN Drive, St. Augustine, St Augustine, FL 32092

      • 4 Beds
      • 3 Baths
      • 2,914 Sq.Ft.
    • 82 LATROBE Avenue, St. Augustine For Sale

      $630,000

      82 LATROBE Avenue, St. Augustine, St Augustine, FL 32095

      • 4 Beds
      • 3 Baths
      • 2,954 Sq.Ft.
    • 110 FAWN FIELD Lane, St. Augustine Active Under Contract

      $600,000

      110 FAWN FIELD Lane, St. Augustine, St Augustine, FL 32092

      • 3 Beds
      • 3 Baths
      • 2,275 Sq.Ft.
    • 616 W 16TH Street, St. Augustine Active Under Contract

      $575,000

      616 W 16TH Street, St. Augustine, St Augustine, FL 32080

      • 3 Beds
      • 2 Baths
      • 1,100 Sq.Ft.
    • 10040 SADDLE GATE Court Active Under Contract

      $570,000

      10040 SADDLE GATE Court, Jacksonville, FL 32219

      • 4 Beds
      • 4 Baths
      • 2,932 Sq.Ft.
    • 44 TWILIGHT Lane, St. Augustine For Sale

      $570,000

      44 TWILIGHT Lane, St. Augustine, St Augustine, FL 32095

      • 3 Beds
      • 3 Baths
      • 2,450 Sq.Ft.
    • 2077 BRIGHTON BAY Trail For Sale

      $525,000

      2077 BRIGHTON BAY Trail, Jacksonville, FL 32246

      • 3 Beds
      • 2 Baths
      • 1,780 Sq.Ft.
    • 5 OCEAN CREST Way, 1411 For Sale

      $525,000

      5 OCEAN CREST Way 1411, Palm Coast, FL 32137

      • 3 Beds
      • 2 Baths
      • 1,696 Sq.Ft.
    • 5 OCEAN CREST WAY #1411 For Sale

      $525,000

      5 OCEAN CREST WAY #1411, PALM COAST, FL 32137

      • 3 Beds
      • 2 Baths
      • 1,696 Sq.Ft.
    • 0 DUNNS CREEK RD For Sale

      $500,000

      0 DUNNS CREEK Road, Satsuma, FL 32189

    • 15 ZANCARA Street, St. Augustine For Sale

      $500,000

      15 ZANCARA Street, St. Augustine, St Augustine, FL 32084

      • 4 Beds
      • 4 Baths
      • 2,492 Sq.Ft.
    • 6300 A1A S, B31TH, St. Augustine Unit: B31TH For Sale

      $500,000

      6300 A1A S B31TH, St. Augustine Unit: B31TH, St Augustine, FL 32080

      • 3 Beds
      • 3 Baths
      • 1,525 Sq.Ft.
    • 7870 A1A S, 206, St. Augustine Unit: 206 Pending

      $500,000

      7870 A1A S 206, St. Augustine Unit: 206, St Augustine, FL 32080

      • 2 Beds
      • 2 Baths
      • 1,200 Sq.Ft.
    • 94300 DUCK LAKE For Sale

      $475,000

      94300 DUCK LAKE DRIVE, Fernandina Beach, FL 32034

      • 3 Beds
      • 3 Baths
      • 2,099 Sq.Ft.
    • 94300 DUCK LAKE Drive For Sale

      $475,000

      94300 DUCK LAKE Drive, Fernandina Beach, FL 32034

      • 3 Beds
      • 3 Baths
      • 2,099 Sq.Ft.
    • 961 W TENNESSEE Trace For Sale

      $475,000

      961 W TENNESSEE Trace, Jacksonville, FL 32259

      • 4 Beds
      • 2 Baths
      • 2,299 Sq.Ft.
    • 2238 NW 16TH AVE For Sale

      $447,000

      2238 NW 16TH AVE, GAINESVILLE, FL 32605

      • 3 Beds
      • 3 Baths
      • 2,137 Sq.Ft.
    • 6232 MORNING DR Pending

      $445,000

      6232 MORNING DR, PORT ORANGE, FL 32127

      • 3 Beds
      • 2 Baths
      • 2,243 Sq.Ft.
    • 6232 MORNING Drive Active Under Contract

      $445,000

      6232 MORNING Drive, Port Orange, FL 32127

      • 3 Beds
      • 2 Baths
      • 2,243 Sq.Ft.
    • 75837 PONDSIDE LANE For Sale

      $435,000

      75837 PONDSIDE LANE, Yulee, FL 32097

      • 3 Beds
      • 3 Baths
      • 2,006 Sq.Ft.
    • 114 AMBERWOOD Drive, St. Augustine For Sale

      $425,000

      114 AMBERWOOD Drive, St. Augustine, St Augustine, FL 32092

      • 2 Beds
      • 3 Baths
      • 1,579 Sq.Ft.
    • 11036 CASTLEMAIN Circle E For Sale

      $407,000

      11036 CASTLEMAIN Circle E, Jacksonville, FL 32256

      • 2 Beds
      • 3 Baths
      • 1,686 Sq.Ft.
    • 2480 BENTWATER Drive W Active Under Contract

      $375,000

      2480 BENTWATER Drive W, Jacksonville, FL 32246

      • 3 Beds
      • 2 Baths
      • 1,372 Sq.Ft.
    • 2772 PEBBLERIDGE Court For Sale

      $370,000

      2772 PEBBLERIDGE Court, Orange Park, FL 32065

      • 4 Beds
      • 3 Baths
      • 2,420 Sq.Ft.
    • 13245 AVERY PARK Lane For Sale

      $350,000

      13245 AVERY PARK Lane, Jacksonville, FL 32218

      • 4 Beds
      • 2 Baths
      • 1,997 Sq.Ft.
    • 51 JAVA Lane, St. Augustine For Sale

      $344,900

      51 JAVA Lane, St. Augustine, St Augustine, FL 32092

      • 3 Beds
      • 3 Baths
      • 1,687 Sq.Ft.
    • 10318 PALMETTO BLVD For Sale

      $343,000

      10318 PALMETTO BLVD, ALACHUA, FL 32615

      • 3 Beds
      • 2 Baths
      • 2,139 Sq.Ft.
    • 6767 EVENING DUSK Drive For Sale

      $335,000

      6767 EVENING DUSK Drive, Jacksonville, FL 32244

      • 4 Beds
      • 3 Baths
      • 2,006 Sq.Ft.
    • 75045 PONDSIDE LANE For Sale

      $335,000

      75045 PONDSIDE LANE, Yulee, FL 32097

      • 2 Beds
      • 2 Baths
      • 1,544 Sq.Ft.
    • 245 AMISTAD Drive, St. Augustine For Sale

      $315,000

      245 AMISTAD Drive, St. Augustine, St Augustine, FL 32086

      • 3 Beds
      • 3 Baths
      • 1,776 Sq.Ft.
    • 3967 WHIPPOORWILL HOLLER Lane For Sale

      $274,999

      3967 WHIPPOORWILL HOLLER Lane, Jacksonville, FL 32217

      • 3 Beds
      • 3 Baths
      • 1,660 Sq.Ft.
    • 5663 GREENLAND Road, 1201 For Sale

      $267,400

      5663 GREENLAND Road 1201, Jacksonville, FL 32258

      • 3 Beds
      • 3 Baths
      • 1,531 Sq.Ft.
    • 10490 NE 120TH ST Pending

      $250,000

      10492 NE 120TH ST, ARCHER, FL 32618

      • 4 Beds
      • 2 Baths
      • 2,280 Sq.Ft.
    • 2946 ROSSELLE Street For Sale

      $250,000

      2946 ROSSELLE Street, Jacksonville, FL 32205

      • 3 Beds
      • 3 Baths
      • 1,034 Sq.Ft.
    • 10768 IRONSTONE Drive N For Sale

      $247,000

      10768 IRONSTONE Drive N, Jacksonville, FL 32246

      • 3 Beds
      • 2 Baths
      • 1,199 Sq.Ft.
    • 206 W 16th Street For Sale

      $230,000

      206 W 16TH Street, Jacksonville, FL 32206

      • 4 Beds
      • 2 Baths
      • 1,726 Sq.Ft.
    • 126 GEORGIA AVE For Sale

      $225,000

      126 GEORGIA AVE, CRESCENT CITY, FL 32112

      • 3 Beds
      • 2 Baths
      • 1,472 Sq.Ft.
    • 126 GEORGIA Avenue For Sale

      $225,000

      126 GEORGIA Avenue, Crescent City, FL 32112

      • 4 Beds
      • 3 Baths
      • 1,824 Sq.Ft.
    View All Properties

    Follow Us On Instagram