Leave a Message

Thank you for your message. We will be in touch with you shortly.

Explore Our Properties

Property Description

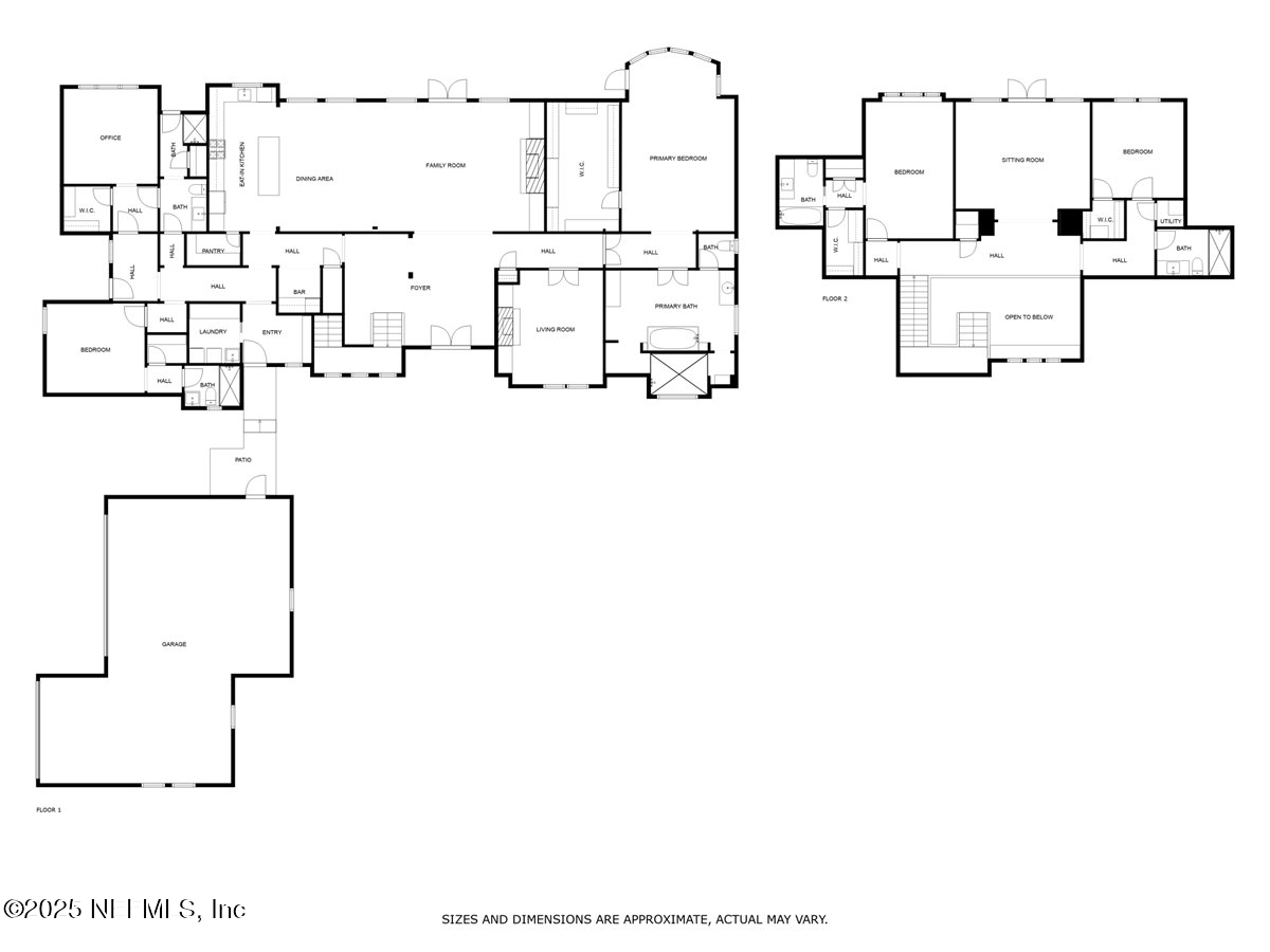
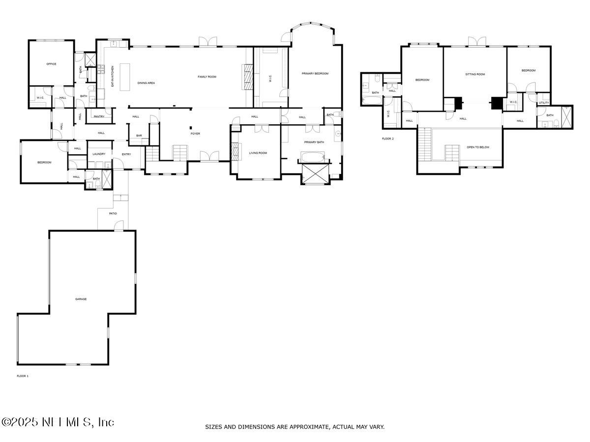
Discover an extraordinary blend of nature, privacy and refined living in this European inspired multi-generational marsh front estate. Set on a serene and private .79 acre homesite this custom built pool home offers 5200 sq. feet of luxury living space and expansive marsh and intracoastal views that stretch across the property.
Designed to embrace the natural light and the beauty of its surroundings, the home boasts an expansive open layout with panoramic views from every main living area. The chef's kitchen features top-tier Wolf and Sub-Zero appliances and has been recently renovated with Taj Mahal quartzite, Italian marble backsplash, and deVOL aged brass pot filler and faucet imported from England.
The first floor primary wing provides a peaceful retreat with private outdoor access, serene views and a spa-like bathroom suite complete with a walk through shower, tub and split vanities. Across the home the multi-generational wing includes two additional en suite bedrooms, walk in closets, private exterior access and a secluded patio ideal for extended family or guests. A conveniently located first floor library/office with custom built ins and fireplace adds sophistication and flexibility to the floor plan.
Upstairs you will find 2 additional bedrooms complete with private baths, and a spacious flex room all over looking the marsh and intracoastal waterways.
The expansive floor plan offers black Marvin windows capturing uninterrupted waterway views, soaring ceilings, European white oak floors, a walk-through butler's pantry, and a detached 3-car garage with elegant breezeway connecting to the main home.
Thoughtfully designed for effortless indoor-outdoor living, this home is a sanctuary for both relaxation and entertaining. French doors from the main living area open to reveal stunning intracoastal views and a luxurious outdoor retreat complete with a heated saltwater pool, spa, and travertine patio. Located in North Floridas most sought-after gated communities, Palencia offers championship golf, clubhouse, tennis, pickleball, nature trails, 3 community pools, and scenic boardwalk trails that lead to the intracoastal.
This exceptional property is a rare offering where European charm meets modern coastal luxury in the heart of Palencia.

Get A 1% CREDIT TOWARDS CLOSING COSTS WITH SELLER'S PREFERRED LENDER!

Overview

Property Status
For Sale
Lot Size
0.79 Acres
MLS ID
2095709
Property Type
Residential
Year Built
2016

Features & Amenities

Neighborhood
Palencia
Architecture Styles
Multi Generational
View Description
Intracoastal, Pool, Protected Preserve, Water
Stories
2
Garage Spaces
3.0
Water Source
Public, Well
Utilites
Electricity Connected, Natural Gas Connected, Sewer Connected, Water Connected
Pool
In Ground, Fenced, Gas Heat, Heated, Pool Sweep, Salt Water, Waterfall
Roof
Shingle
Lot Features
Many Trees, Sprinklers In Rear
Parking
Additional Parking, Circular Driveway, Detached, Garage, Garage Door Opener, Guest
Heat Type
Central, Natural Gas
Air Conditioning
Central Air, Multi Units, Split System
Other Interior Features
Built-in Features, Butler Pantry, Ceiling Fan(s), Eat-in Kitchen, Entrance Foyer, Guest Suite, In-Law Floorplan, Kitchen Island, Open Floorplan, Pantry, Primary Bathroom -Tub with Separate Shower, Primary Downstairs, Split Bedrooms, Vaulted Ceiling(s), Walk-In Closet(s), Wet Bar
Sewer
Public Sewer
HOA Amenities
Pool, Basketball Court, Childrens Pool, Clubhouse, Dog Park, Fitness Center, Gated, Golf Course, Jogging Path, Maintenance Grounds, Park, Pickleball, Playground, Sauna, Tennis Court(s)
Security Features
Security System Owned, Smoke Detector(s)
Other Exterior Features
Balcony, Fire Pit, Impact Windows
Elementary School
Palencia
Middle School
Pacetti Bay
High School
Allen D. Nease
Sales Price
$2,999,000
Real Estate Tax
$32,920/yr
HOA
$150/yr

Downloads

150 HICKORY HILL Drive, St. Augustine

Schedule a Tour

We would love to help you see this beautiful home! As a full-service brokerage, we can help you tour. Please submit an offer, and answer questions about the buying process.

Enter a valid email

Thank you

for your interest in 150 HICKORY HILL Drive, St. Augustine, St Augustine, FL 32095

back to page
150 HICKORY HILL Drive, St. Augustine
Navigate
Palencia

Explore Palencia

read more
  • Discover an extraordinary blend of nature, privacy and refined living in this European inspired multi-generational marsh front estate.

    Florida Coastal Team

Mortgage Calculator

Estimate your monthly mortgage payment, including the principal and interest, property taxes, and HOA. Adjust the values to generate a more accurate rate.
$0,000 Your Payment 20 15 65
$0,000 Your Payment

I'm Interested In

150 HICKORY HILL Drive, St. Augustine

or
  • CallChristopher Snow

    License #SL3077177

    (904) 329-7895
  • Browse Our

    Exclusive Properties

    • 150 HICKORY HILL Drive, St. Augustine For Sale

      $2,999,000

      150 HICKORY HILL Drive, St. Augustine, St Augustine, FL 32095

      • 5 Beds
      • 5 Baths
      • 5,229 Sq.Ft.
    • 5705 COUNTY ROAD 208, C, St. Augustine Unit: C For Sale

      $1,300,000

      5705 COUNTY ROAD 208 C, St. Augustine Unit: C, St Augustine, FL 32092

      • 3 Beds
      • 1 Bath
      • 2,490 Sq.Ft.
    • 5705 COUNTY ROAD 208, St. Augustine For Sale

      $1,300,000

      5705 COUNTY ROAD 208, St. Augustine, St Augustine, FL 32092

    • 96014 ENCLAVE For Sale

      $850,000

      96014 ENCLAVE MANOR, Fernandina Beach, FL 32034

      • 3 Beds
      • 3 Baths
      • 2,113 Sq.Ft.
    • 96014 ENCLAVE Manor For Sale

      $850,000

      96014 ENCLAVE Manor, Fernandina Beach, FL 32034

      • 3 Beds
      • 3 Baths
      • 2,113 Sq.Ft.
    • 253 Parkwood Cir For Sale

      $800,000

      253 Parkwood Cir, St Augustine, FL 32086

      • 4 Beds
      • 3 Baths
      • 2,685 Sq.Ft.
    • 253 PARKWOOD Circle, St. Augustine For Sale

      $800,000

      253 PARKWOOD Circle, St. Augustine, St Augustine, FL 32086

      • 4 Beds
      • 3 Baths
      • 2,685 Sq.Ft.
    • 3732 BERENSTAIN Drive, St. Augustine For Sale

      $750,000

      3732 BERENSTAIN Drive, St. Augustine, St Augustine, FL 32092

      • 4 Beds
      • 3 Baths
      • 2,914 Sq.Ft.
    • 13962 IBIS POINT Boulevard For Sale

      $700,000

      13962 IBIS POINT Boulevard, Jacksonville, FL 32224

      • 4 Beds
      • 3 Baths
      • 2,706 Sq.Ft.
    • 12114 GRAND PINE Drive For Sale

      $650,000

      12114 GRAND PINE Drive, Jacksonville, FL 32224

      • 3 Beds
      • 2 Baths
      • 2,228 Sq.Ft.
    • 21 MAHOGANY WAY For Sale

      $645,000

      21 MAHOGANY WAY, PALM COAST, FL 32164

      • 4 Beds
      • 4 Baths
      • 2,790 Sq.Ft.
    • 21 MAHOGANY Way, Palm Coast For Sale

      $645,000

      21 MAHOGANY Way, Palm Coast, FL 32164

      • 4 Beds
      • 4 Baths
      • 2,790 Sq.Ft.
    • 110 FAWN FIELD Lane, St. Augustine For Sale

      $625,000

      110 FAWN FIELD Lane, St. Augustine, St Augustine, FL 32092

      • 3 Beds
      • 3 Baths
      • 2,275 Sq.Ft.
    • 969 W TENNESSEE Trace For Sale

      $600,000

      969 W TENNESSEE Trace, Jacksonville, FL 32259

      • 6 Beds
      • 4 Baths
      • 3,523 Sq.Ft.
    • 239 BLUE CYPRESS Trail, St. Augustine For Sale

      $575,000

      239 BLUE CYPRESS Trail, St. Augustine, St Augustine, FL 32084

      • 5 Beds
      • 4 Baths
      • 2,670 Sq.Ft.
    • 616 W 16TH Street, St. Augustine For Sale

      $575,000

      616 W 16TH Street, St. Augustine, St Augustine, FL 32080

      • 3 Beds
      • 2 Baths
      • 1,100 Sq.Ft.
    • 10040 SADDLE GATE Court For Sale

      $570,000

      10040 SADDLE GATE Court, Jacksonville, FL 32219

      • 4 Beds
      • 4 Baths
      • 2,932 Sq.Ft.
    • 2282 OSCEOLA FOREST Court For Sale

      $550,000

      2282 OSCEOLA FOREST Court, Fruit Cove, FL 32259

      • 3 Beds
      • 2 Baths
      • 1,912 Sq.Ft.
    • 85110 SOUTHERN CREEK Boulevard For Sale

      $550,000

      85110 SOUTHERN CREEK Boulevard, Fernandina Beach, FL 32034

      • 4 Beds
      • 4 Baths
      • 2,707 Sq.Ft.
    • 2077 BRIGHTON BAY Trail For Sale

      $525,000

      2077 BRIGHTON BAY Trail, Jacksonville, FL 32246

      • 3 Beds
      • 2 Baths
      • 1,780 Sq.Ft.
    • 5 OCEAN CREST Way, 1411 For Sale

      $525,000

      5 OCEAN CREST Way, 1411, Palm Coast, FL 32137

      • 3 Beds
      • 2 Baths
      • 1,696 Sq.Ft.
    • 5 OCEAN CREST WAY #1411 For Sale

      $525,000

      5 OCEAN CREST WAY #1411, PALM COAST, FL 32137

      • 3 Beds
      • 2 Baths
      • 1,696 Sq.Ft.
    • 1618 TIMBER CROSSING Lane Active Under Contract

      $500,000

      1618 TIMBER CROSSING Lane, Jacksonville, FL 32225

      • 4 Beds
      • 4 Baths
      • 2,956 Sq.Ft.
    • 6300 A1A S, B31TH, St. Augustine Unit: B31TH For Sale

      $500,000

      6300 A1A S B31TH, St. Augustine Unit: B31TH, St Augustine, FL 32080

      • 3 Beds
      • 3 Baths
      • 1,525 Sq.Ft.
    • 7870 A1A S, 206, St. Augustine Unit: 206 For Sale

      $500,000

      7870 A1A S, 206, St. Augustine Unit: 206, St Augustine, FL 32080

      • 2 Beds
      • 2 Baths
      • 1,200 Sq.Ft.
    • 7870 S A1A #206 For Sale

      $500,000

      7870 S A1A #206, St Augustine, FL 32080

      • 2 Beds
      • 2 Baths
      • 1,200 Sq.Ft.
    • 961 W TENNESSEE Trace For Sale

      $500,000

      961 W TENNESSEE Trace, Jacksonville, FL 32259

      • 4 Beds
      • 2 Baths
      • 2,299 Sq.Ft.
    • 4298 RIPKEN Circle W Active Under Contract

      $475,000

      4298 RIPKEN Circle W, Jacksonville, FL 32224

      • 3 Beds
      • 2 Baths
      • 1,926 Sq.Ft.
    • 94300 DUCK LAKE For Sale

      $475,000

      94300 DUCK LAKE DRIVE, Fernandina Beach, FL 32034

      • 3 Beds
      • 3 Baths
      • 2,099 Sq.Ft.
    • 94300 DUCK LAKE Drive For Sale

      $475,000

      94300 DUCK LAKE Drive, Fernandina Beach, FL 32034

      • 3 Beds
      • 3 Baths
      • 2,099 Sq.Ft.
    • 9605 US HIGHWAY 1, St. Augustine For Sale

      $460,000

      9605 US HIGHWAY 1 S, St. Augustine, St Augustine, FL 32086

      • 3 Beds
      • 2 Baths
      • 1,656 Sq.Ft.
    • 28 RIACHUELO Lane, St. Augustine For Sale

      $450,000

      28 RIACHUELO Lane, St. Augustine, St Augustine, FL 32095

      • 4 Beds
      • 2 Baths
      • 1,858 Sq.Ft.
    • 11613 WHITE STURGEON Court For Sale

      $440,000

      11613 WHITE STURGEON Court, Jacksonville, FL 32226

      • 5 Beds
      • 3 Baths
      • 2,517 Sq.Ft.
    • 75837 PONDSIDE LANE For Sale

      $439,000

      75837 PONDSIDE LANE, Yulee, FL 32097

      • 3 Beds
      • 3 Baths
      • 2,006 Sq.Ft.
    • 114 AMBERWOOD Drive, St. Augustine For Sale

      $425,000

      114 AMBERWOOD Drive, St. Augustine, St Augustine, FL 32092

      • 2 Beds
      • 3 Baths
      • 1,579 Sq.Ft.
    • 2450 BENTWATER Drive W For Sale

      $425,000

      2450 BENTWATER Drive W, Jacksonville, FL 32246

      • 3 Beds
      • 2 Baths
      • 1,972 Sq.Ft.
    • 418 NW 27TH TER For Sale

      $414,900

      418 NW 27TH TER, GAINESVILLE, FL 32607

      • 4 Beds
      • 2 Baths
      • 1,340 Sq.Ft.
    • 218 CAMINHA Road, St. Augustine For Sale

      $407,500

      218 CAMINHA Road, St. Augustine, St Augustine, FL 32084

      • 4 Beds
      • 3 Baths
      • 2,231 Sq.Ft.
    • 2772 PEBBLERIDGE Court For Sale

      $400,000

      2772 PEBBLERIDGE Court, Orange Park, FL 32065

      • 4 Beds
      • 3 Baths
      • 2,420 Sq.Ft.
    • 38 RED MILL DR For Sale

      $400,000

      38 RED MILL DR, PALM COAST, FL 32164

      • 4 Beds
      • 3 Baths
      • 2,976 Sq.Ft.
    • 38 RED MILL Drive For Sale

      $400,000

      38 RED MILL Drive, Palm Coast, FL 32164

      • 4 Beds
      • 3 Baths
      • 2,976 Sq.Ft.
    • 12316 ITANI Way For Sale

      $398,000

      12316 ITANI Way, Jacksonville, FL 32226

      • 4 Beds
      • 2 Baths
      • 1,800 Sq.Ft.
    • 13245 AVERY PARK Lane For Sale

      $360,000

      13245 AVERY PARK Lane, Jacksonville, FL 32218

      • 4 Beds
      • 2 Baths
      • 1,997 Sq.Ft.
    • 850 E Watson Rd For Sale

      $350,000

      850 E Watson Rd, St Augustine, FL 32086

      • 3 Beds
      • 2 Baths
      • 1,692 Sq.Ft.
    • 850 E WATSON Road, St. Augustine Active Under Contract

      $350,000

      850 E WATSON Road, St. Augustine, St Augustine, FL 32086

      • 3 Beds
      • 2 Baths
      • 1,692 Sq.Ft.
    • 75045 PONDSIDE LANE For Sale

      $345,000

      75045 PONDSIDE LANE, Yulee, FL 32097

      • 2 Beds
      • 2 Baths
      • 1,544 Sq.Ft.
    • 51 JAVA Lane, St. Augustine For Sale

      $344,900

      51 JAVA Lane, St. Augustine, St Augustine, FL 32092

      • 3 Beds
      • 3 Baths
      • 1,687 Sq.Ft.
    • 11047 SANTA FE Street E For Sale

      $325,000

      11047 SANTA FE Street E, Jacksonville, FL 32246

      • 3 Beds
      • 2 Baths
      • 1,315 Sq.Ft.
    • 6633 ALTAMA Road, Jacksonville For Sale

      $315,000

      6633 ALTAMA Road, Jacksonville, FL 32216

      • 3 Beds
      • 2 Baths
      • 1,529 Sq.Ft.
    • 2513 BEACHVIEW Drive For Sale

      $290,000

      2513 BEACHVIEW Drive, Jacksonville, FL 32218

      • 4 Beds
      • 2 Baths
      • 1,856 Sq.Ft.
    View All Properties

    Follow Us On Instagram