Leave a Message

Thank you for your message. We will be in touch with you shortly.

Explore Our Properties

Property Description

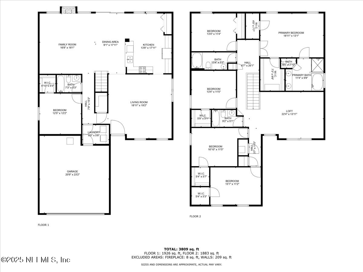
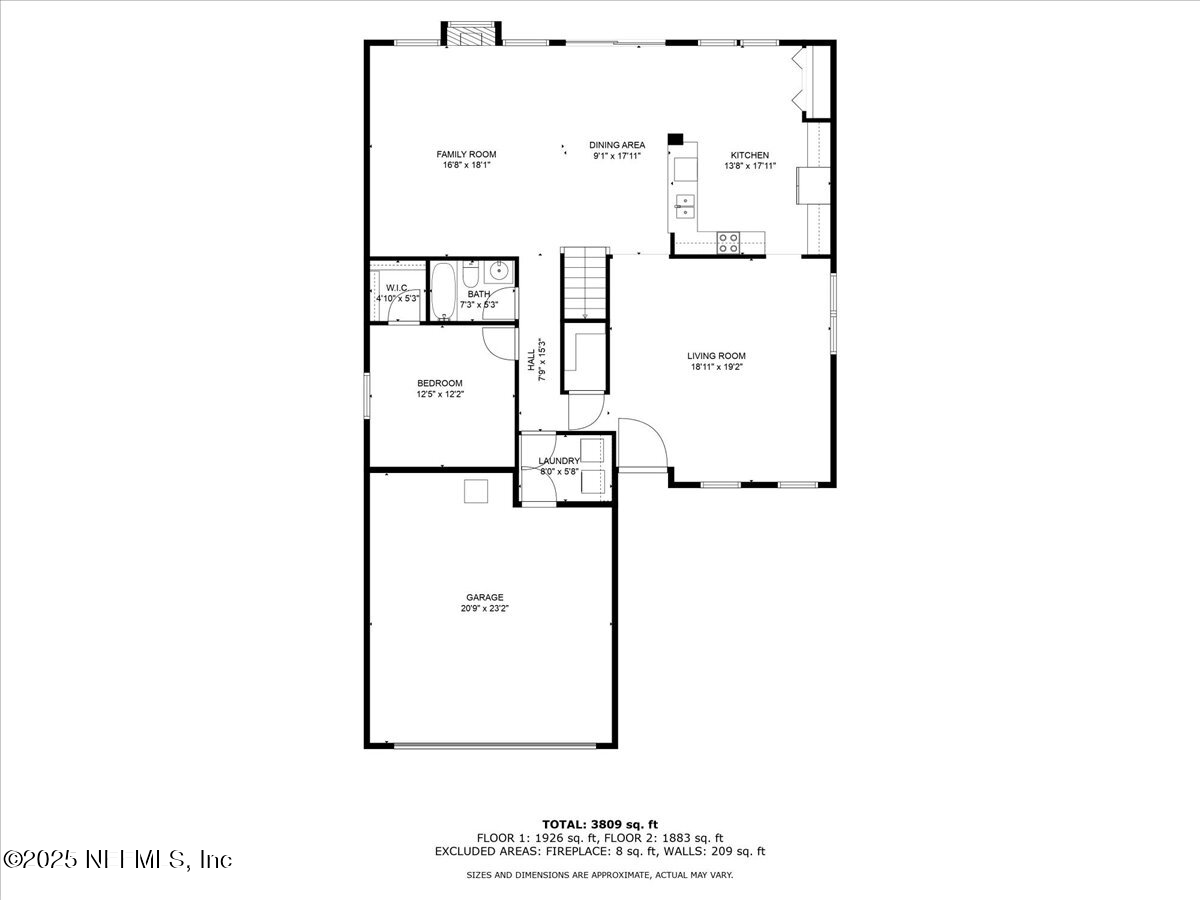
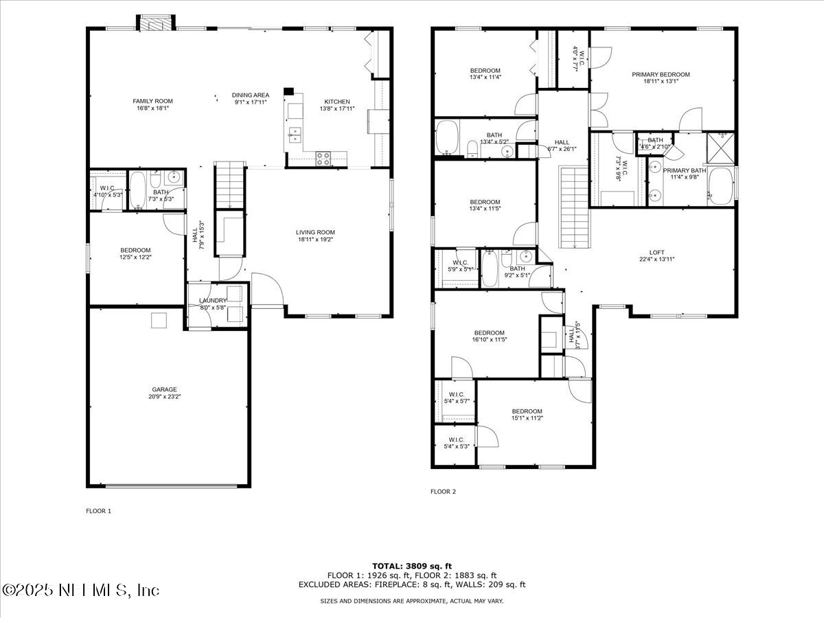
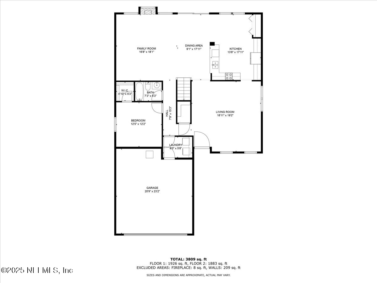
Welcome to this beautifully maintained 2-story home in the highly sought-after Julington Creek Plantation. Offering 6 bedrooms and 4 bathrooms, this residence is designed with comfort, function, and style in mind.

The home features hardwood and luxury vinyl plank flooring throughout, paired with a modern kitchen complete with sterling silver appliances and ample cabinetry. A 42-foot enclosed patio extends your living space and provides the perfect spot for entertaining or relaxing year-round.

Peace of mind comes with a 4-year-old roof and 4-year-old water heater, while the 2-car garage with epoxy flooring offers convenience and additional storage.

Located in a premier community with top-rated schools, exceptional amenities, and easy access to shopping, dining, and recreation, this property is the perfect blend of space and lifestyle.

Home Warranty INCLUDED with accepted offer!
Up to 1% Credit towards buyer's closing cost if using Seller's preferred lender.

Overview

Property Status
For Sale
Lot Size
6,969.6 Sq.Ft.
MLS ID
2108613
Property Type
Residential
Year Built
2004

Features & Amenities

Neighborhood
Julington Creek Plantation
Architecture Styles
Traditional
View Description
Trees/Woods
Stories
2
Garage Spaces
2.0
Water Source
Public
Utilites
Cable Available, Electricity Connected, Sewer Connected, Water Connected
Roof
Shingle
Parking
Attached, Garage
Heat Type
Central, Electric
Air Conditioning
Central Air, Electric
Other Interior Features
Breakfast Bar, Breakfast Nook, Ceiling Fan(s), Eat-in Kitchen, His and Hers Closets, Pantry, Primary Bathroom -Tub with Separate Shower, Walk-In Closet(s), Other
Sewer
Public Sewer
HOA Amenities
Pool, Basketball Court, Childrens Pool, Clubhouse, Golf Course, Jogging Path, Pickleball, Playground
Elementary School
Durbin Creek
Middle School
Fruit Cove
High School
Creekside
Sales Price
$600,000
Real Estate Tax
$5,648/yr
HOA
$560/yr

Downloads

969 W TENNESSEE Trace

Schedule a Tour

We would love to help you see this beautiful home! As a full-service brokerage, we can help you tour. Please submit an offer, and answer questions about the buying process.

Enter a valid email

Thank you

for your interest in 969 W TENNESSEE Trace, Jacksonville, FL 32259

back to page
969 W TENNESSEE Trace
Navigate
Julington Creek Plantation

Explore Julington Creek Plantation

read more

Mortgage Calculator

Estimate your monthly mortgage payment, including the principal and interest, property taxes, and HOA. Adjust the values to generate a more accurate rate.
$0,000 Your Payment 20 15 65
$0,000 Your Payment

I'm Interested In

969 W TENNESSEE Trace

or Contact

Browse Our

Exclusive Properties

  • 150 HICKORY HILL Drive, St. Augustine For Sale

    $2,999,000

    150 HICKORY HILL Drive, St. Augustine, St Augustine, FL 32095

    • 5 Beds
    • 5 Baths
    • 5,229 Sq.Ft.
  • 5705 COUNTY ROAD 208, C, St. Augustine Unit: C For Sale

    $1,300,000

    5705 COUNTY ROAD 208 C, St. Augustine Unit: C, St Augustine, FL 32092

    • 3 Beds
    • 1 Bath
    • 2,490 Sq.Ft.
  • 5705 COUNTY ROAD 208, St. Augustine For Sale

    $1,300,000

    5705 COUNTY ROAD 208, St. Augustine, St Augustine, FL 32092

  • 96014 ENCLAVE For Sale

    $850,000

    96014 ENCLAVE MANOR, Fernandina Beach, FL 32034

    • 3 Beds
    • 3 Baths
    • 2,113 Sq.Ft.
  • 96014 ENCLAVE Manor For Sale

    $850,000

    96014 ENCLAVE Manor, Fernandina Beach, FL 32034

    • 3 Beds
    • 3 Baths
    • 2,113 Sq.Ft.
  • 253 Parkwood Cir For Sale

    $800,000

    253 Parkwood Cir, St Augustine, FL 32086

    • 4 Beds
    • 3 Baths
    • 2,685 Sq.Ft.
  • 253 PARKWOOD Circle, St. Augustine For Sale

    $800,000

    253 PARKWOOD Circle, St. Augustine, St Augustine, FL 32086

    • 4 Beds
    • 3 Baths
    • 2,685 Sq.Ft.
  • 3732 BERENSTAIN Drive, St. Augustine For Sale

    $750,000

    3732 BERENSTAIN Drive, St. Augustine, St Augustine, FL 32092

    • 4 Beds
    • 3 Baths
    • 2,914 Sq.Ft.
  • 13962 IBIS POINT Boulevard For Sale

    $700,000

    13962 IBIS POINT Boulevard, Jacksonville, FL 32224

    • 4 Beds
    • 3 Baths
    • 2,706 Sq.Ft.
  • 12114 GRAND PINE Drive For Sale

    $650,000

    12114 GRAND PINE Drive, Jacksonville, FL 32224

    • 3 Beds
    • 2 Baths
    • 2,228 Sq.Ft.
  • 21 MAHOGANY WAY For Sale

    $645,000

    21 MAHOGANY WAY, PALM COAST, FL 32164

    • 4 Beds
    • 4 Baths
    • 2,790 Sq.Ft.
  • 21 MAHOGANY Way, Palm Coast For Sale

    $645,000

    21 MAHOGANY Way, Palm Coast, FL 32164

    • 4 Beds
    • 4 Baths
    • 2,790 Sq.Ft.
  • 110 FAWN FIELD Lane, St. Augustine For Sale

    $625,000

    110 FAWN FIELD Lane, St. Augustine, St Augustine, FL 32092

    • 3 Beds
    • 3 Baths
    • 2,275 Sq.Ft.
  • 969 W TENNESSEE Trace For Sale

    $600,000

    969 W TENNESSEE Trace, Jacksonville, FL 32259

    • 6 Beds
    • 4 Baths
    • 3,523 Sq.Ft.
  • 239 BLUE CYPRESS Trail, St. Augustine For Sale

    $575,000

    239 BLUE CYPRESS Trail, St. Augustine, St Augustine, FL 32084

    • 5 Beds
    • 4 Baths
    • 2,670 Sq.Ft.
  • 616 W 16TH Street, St. Augustine For Sale

    $575,000

    616 W 16TH Street, St. Augustine, St Augustine, FL 32080

    • 3 Beds
    • 2 Baths
    • 1,100 Sq.Ft.
  • 10040 SADDLE GATE Court For Sale

    $570,000

    10040 SADDLE GATE Court, Jacksonville, FL 32219

    • 4 Beds
    • 4 Baths
    • 2,932 Sq.Ft.
  • 2282 OSCEOLA FOREST Court For Sale

    $550,000

    2282 OSCEOLA FOREST Court, Fruit Cove, FL 32259

    • 3 Beds
    • 2 Baths
    • 1,912 Sq.Ft.
  • 85110 SOUTHERN CREEK Boulevard For Sale

    $550,000

    85110 SOUTHERN CREEK Boulevard, Fernandina Beach, FL 32034

    • 4 Beds
    • 4 Baths
    • 2,707 Sq.Ft.
  • 2077 BRIGHTON BAY Trail For Sale

    $525,000

    2077 BRIGHTON BAY Trail, Jacksonville, FL 32246

    • 3 Beds
    • 2 Baths
    • 1,780 Sq.Ft.
  • 5 OCEAN CREST Way, 1411 For Sale

    $525,000

    5 OCEAN CREST Way, 1411, Palm Coast, FL 32137

    • 3 Beds
    • 2 Baths
    • 1,696 Sq.Ft.
  • 5 OCEAN CREST WAY #1411 For Sale

    $525,000

    5 OCEAN CREST WAY #1411, PALM COAST, FL 32137

    • 3 Beds
    • 2 Baths
    • 1,696 Sq.Ft.
  • 1618 TIMBER CROSSING Lane Active Under Contract

    $500,000

    1618 TIMBER CROSSING Lane, Jacksonville, FL 32225

    • 4 Beds
    • 4 Baths
    • 2,956 Sq.Ft.
  • 6300 A1A S, B31TH, St. Augustine Unit: B31TH For Sale

    $500,000

    6300 A1A S B31TH, St. Augustine Unit: B31TH, St Augustine, FL 32080

    • 3 Beds
    • 3 Baths
    • 1,525 Sq.Ft.
  • 7870 A1A S, 206, St. Augustine Unit: 206 For Sale

    $500,000

    7870 A1A S, 206, St. Augustine Unit: 206, St Augustine, FL 32080

    • 2 Beds
    • 2 Baths
    • 1,200 Sq.Ft.
  • 7870 S A1A #206 For Sale

    $500,000

    7870 S A1A #206, St Augustine, FL 32080

    • 2 Beds
    • 2 Baths
    • 1,200 Sq.Ft.
  • 961 W TENNESSEE Trace For Sale

    $500,000

    961 W TENNESSEE Trace, Jacksonville, FL 32259

    • 4 Beds
    • 2 Baths
    • 2,299 Sq.Ft.
  • 4298 RIPKEN Circle W Active Under Contract

    $475,000

    4298 RIPKEN Circle W, Jacksonville, FL 32224

    • 3 Beds
    • 2 Baths
    • 1,926 Sq.Ft.
  • 94300 DUCK LAKE For Sale

    $475,000

    94300 DUCK LAKE DRIVE, Fernandina Beach, FL 32034

    • 3 Beds
    • 3 Baths
    • 2,099 Sq.Ft.
  • 94300 DUCK LAKE Drive For Sale

    $475,000

    94300 DUCK LAKE Drive, Fernandina Beach, FL 32034

    • 3 Beds
    • 3 Baths
    • 2,099 Sq.Ft.
  • 9605 US HIGHWAY 1, St. Augustine For Sale

    $460,000

    9605 US HIGHWAY 1 S, St. Augustine, St Augustine, FL 32086

    • 3 Beds
    • 2 Baths
    • 1,656 Sq.Ft.
  • 28 RIACHUELO Lane, St. Augustine For Sale

    $450,000

    28 RIACHUELO Lane, St. Augustine, St Augustine, FL 32095

    • 4 Beds
    • 2 Baths
    • 1,858 Sq.Ft.
  • 11613 WHITE STURGEON Court For Sale

    $440,000

    11613 WHITE STURGEON Court, Jacksonville, FL 32226

    • 5 Beds
    • 3 Baths
    • 2,517 Sq.Ft.
  • 75837 PONDSIDE LANE For Sale

    $439,000

    75837 PONDSIDE LANE, Yulee, FL 32097

    • 3 Beds
    • 3 Baths
    • 2,006 Sq.Ft.
  • 114 AMBERWOOD Drive, St. Augustine For Sale

    $425,000

    114 AMBERWOOD Drive, St. Augustine, St Augustine, FL 32092

    • 2 Beds
    • 3 Baths
    • 1,579 Sq.Ft.
  • 2450 BENTWATER Drive W For Sale

    $425,000

    2450 BENTWATER Drive W, Jacksonville, FL 32246

    • 3 Beds
    • 2 Baths
    • 1,972 Sq.Ft.
  • 418 NW 27TH TER For Sale

    $414,900

    418 NW 27TH TER, GAINESVILLE, FL 32607

    • 4 Beds
    • 2 Baths
    • 1,340 Sq.Ft.
  • 218 CAMINHA Road, St. Augustine For Sale

    $407,500

    218 CAMINHA Road, St. Augustine, St Augustine, FL 32084

    • 4 Beds
    • 3 Baths
    • 2,231 Sq.Ft.
  • 2772 PEBBLERIDGE Court For Sale

    $400,000

    2772 PEBBLERIDGE Court, Orange Park, FL 32065

    • 4 Beds
    • 3 Baths
    • 2,420 Sq.Ft.
  • 38 RED MILL DR For Sale

    $400,000

    38 RED MILL DR, PALM COAST, FL 32164

    • 4 Beds
    • 3 Baths
    • 2,976 Sq.Ft.
  • 38 RED MILL Drive For Sale

    $400,000

    38 RED MILL Drive, Palm Coast, FL 32164

    • 4 Beds
    • 3 Baths
    • 2,976 Sq.Ft.
  • 12316 ITANI Way For Sale

    $398,000

    12316 ITANI Way, Jacksonville, FL 32226

    • 4 Beds
    • 2 Baths
    • 1,800 Sq.Ft.
  • 13245 AVERY PARK Lane For Sale

    $360,000

    13245 AVERY PARK Lane, Jacksonville, FL 32218

    • 4 Beds
    • 2 Baths
    • 1,997 Sq.Ft.
  • 850 E Watson Rd For Sale

    $350,000

    850 E Watson Rd, St Augustine, FL 32086

    • 3 Beds
    • 2 Baths
    • 1,692 Sq.Ft.
  • 850 E WATSON Road, St. Augustine Active Under Contract

    $350,000

    850 E WATSON Road, St. Augustine, St Augustine, FL 32086

    • 3 Beds
    • 2 Baths
    • 1,692 Sq.Ft.
  • 75045 PONDSIDE LANE For Sale

    $345,000

    75045 PONDSIDE LANE, Yulee, FL 32097

    • 2 Beds
    • 2 Baths
    • 1,544 Sq.Ft.
  • 51 JAVA Lane, St. Augustine For Sale

    $344,900

    51 JAVA Lane, St. Augustine, St Augustine, FL 32092

    • 3 Beds
    • 3 Baths
    • 1,687 Sq.Ft.
  • 11047 SANTA FE Street E For Sale

    $325,000

    11047 SANTA FE Street E, Jacksonville, FL 32246

    • 3 Beds
    • 2 Baths
    • 1,315 Sq.Ft.
  • 6633 ALTAMA Road, Jacksonville For Sale

    $315,000

    6633 ALTAMA Road, Jacksonville, FL 32216

    • 3 Beds
    • 2 Baths
    • 1,529 Sq.Ft.
  • 2513 BEACHVIEW Drive For Sale

    $290,000

    2513 BEACHVIEW Drive, Jacksonville, FL 32218

    • 4 Beds
    • 2 Baths
    • 1,856 Sq.Ft.
View All Properties

Follow Us On Instagram