Leave a Message

Thank you for your message. We will be in touch with you shortly.

Explore Our Properties

Property Description

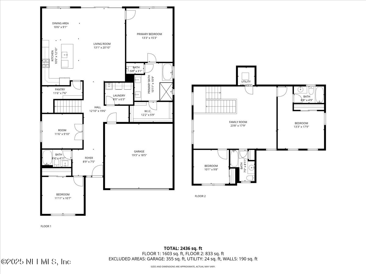
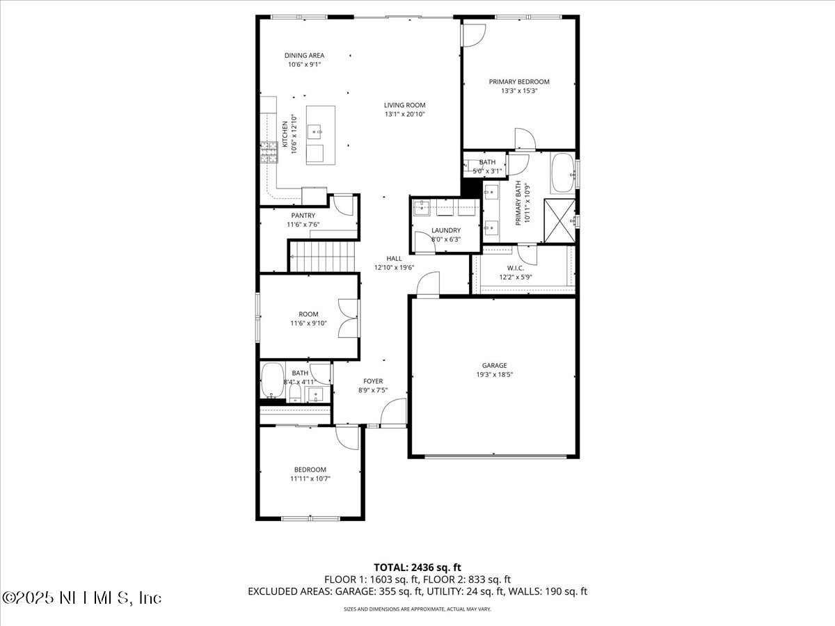
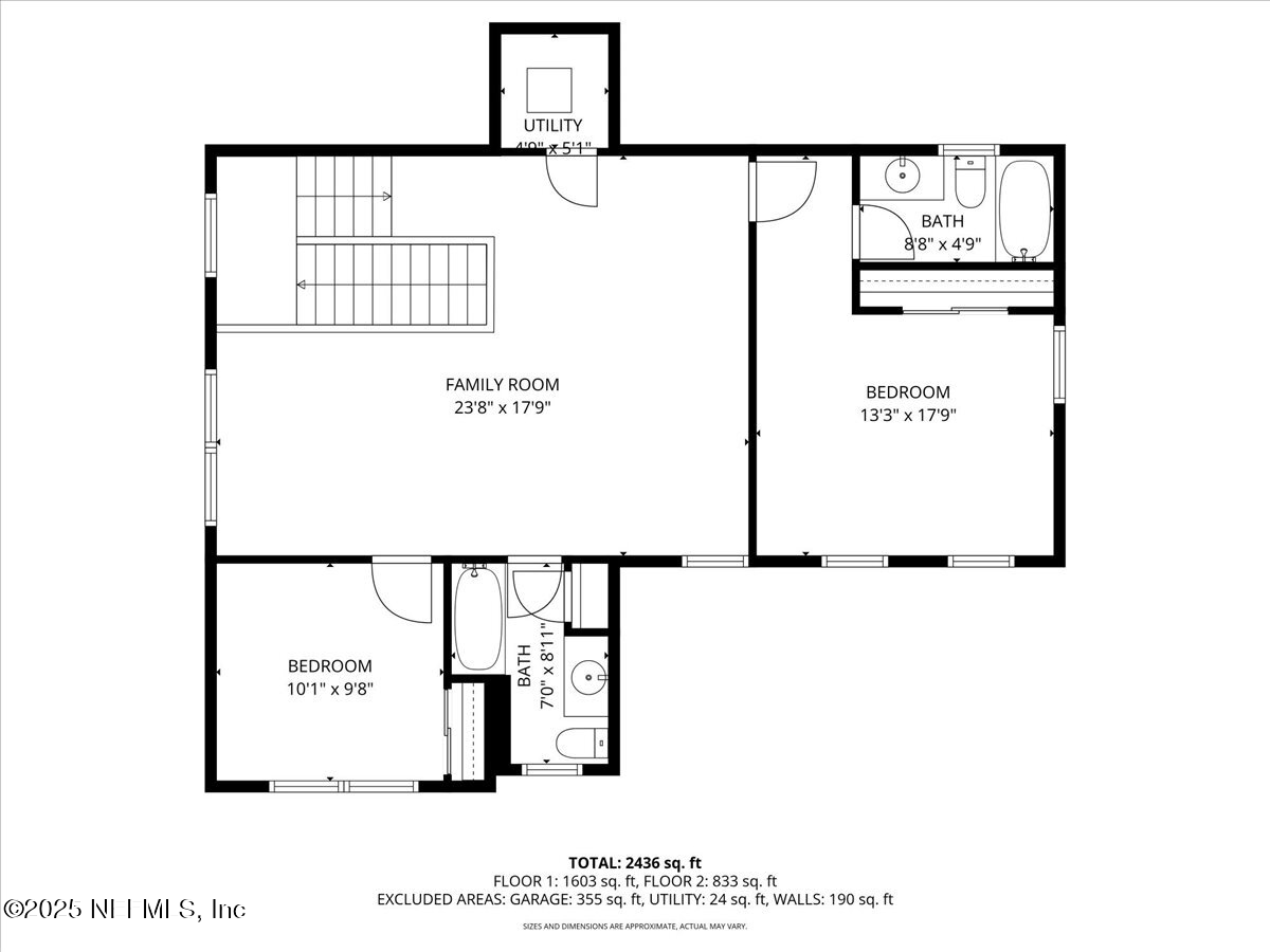
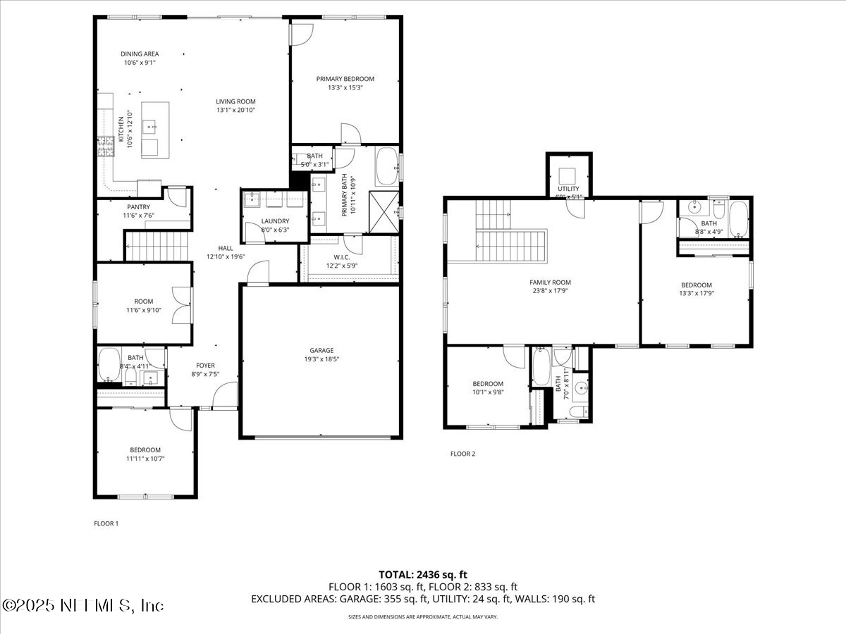
Why wait to build when your dream home is ready now? PRICED $20K UNDER RECENT APPRAISAL! This stunning 2025 Craftsman-style Ella floor plan blends timeless design with thoughtful upgrades. Featuring 4 spacious bedrooms, including 2 ensuite suites (1 downstairs and 1 upstairs), 4 full bathrooms, PLUS a versatile flex/office space, and an inviting loft ideal for relaxing or entertaining. The gourmet kitchen upgraded finishes, perfect for everyday living or entertaining. Multi-panel stacking doors fill the home with natural light and open to an oversized covered lanai with peaceful lake and nature views. Wood banisters with decorative spindles and a bright entryway add warmth and elegance throughout. Located in the sought-after Retreat at Town Center in Palm Coast, this nearly new home delivers the benefits of new construction without the wait. Ask about our 1% lender incentive -- it can be applied toward closing costs or a permanent or temporary rate buy down. Schedule your showing today Why wait to build when your dream home is ready now? This beautifully designed 2025 Craftsman-style Ella floor plan combines thoughtful upgrades with timeless elegance, offering the perfect blend of comfort, space, and style.

This barely lived-in home features 4 spacious bedrooms, including two ensuite suites (one on the first floor and one upstairs), 4 full bathrooms, a versatile flex or office space, and an inviting loft that's perfect for relaxation or entertaining.

The gourmet kitchen is a true centerpiece with a gas cooktop, wall oven, and upgraded finishes, ideal for everyday cooking or hosting gatherings. Natural light pours through the multi-panel stacking doors, seamlessly connecting the living space to the oversized covered lanai, where you can unwind and enjoy peaceful lake and nature views.

Upgraded oak banisters with decorative spindles add warmth and character, while the light-filled entryway creates a welcoming first impression. Every detail has been thoughtfully curated to elevate the living experience.

Located in the sought-after Retreat at Town Center community in Palm Coast, this home offers the convenience of new construction without the wait.
Ask about our 1% lender incentive  it can be applied toward closing costs or a permanent or temporary rate buydown.
Schedule your private showing today and experience this stunning home for yourself!

Overview

Property Status
For Sale
Lot Size
6,534 Sq.Ft.
MLS ID
2113049
Property Type
Residential
Year Built
2025

Features & Amenities

Architecture Styles
Contemporary
View Description
Lake, Trees/Woods
Stories
2
Garage Spaces
2.0
Water Source
Public
Utilites
Cable Available, Electricity Connected, Natural Gas Connected, Sewer Connected, Water Connected
Roof
Shingle
Lot Features
Few Trees, Sprinklers In Front, Sprinklers In Rear
Parking
Attached, Garage, Garage Door Opener
Heat Type
Central
Air Conditioning
Central Air, Electric
Laundry Room
Electric Dryer Hookup, Gas Dryer Hookup, In Unit, Lower Level, Sink, Washer Hookup
Appliances
Dishwasher, Disposal, Electric Oven, Gas Cooktop, Microwave, Refrigerator, Tankless Water Heater
Other Interior Features
Built-in Features, Entrance Foyer, Kitchen Island, Open Floorplan, Pantry, Primary Bathroom -Tub with Separate Shower, Primary Downstairs, Smart Thermostat, Split Bedrooms, Walk-In Closet(s)
Sewer
Public Sewer
HOA Amenities
Pool, Gated, Jogging Path, Maintenance Grounds
Security Features
Key Card Entry, Security Gate, Smoke Detector(s)
Elementary School
Belle Terre
Middle School
Buddy Taylor
High School
Flagler Palm Coast
Sales Price
$645,000
Real Estate Tax
$1,514/yr
HOA
$301/3 mos

Downloads

21 MAHOGANY Way, Palm Coast

Schedule a Tour

We would love to help you see this beautiful home! As a full-service brokerage, we can help you tour. Please submit an offer, and answer questions about the buying process.

Enter a valid email

Thank you

for your interest in 21 MAHOGANY Way, Palm Coast, FL 32164

back to page
21 MAHOGANY Way, Palm Coast
Navigate

Mortgage Calculator

Estimate your monthly mortgage payment, including the principal and interest, property taxes, and HOA. Adjust the values to generate a more accurate rate.
$0,000 Your Payment 20 15 65
$0,000 Your Payment

I'm Interested In

21 MAHOGANY Way, Palm Coast

or Contact

Browse Our

Exclusive Properties

  • 6043 US HIGHWAY 17 For Sale

    $3,600,000

    6043 US HIGHWAY 17, Green Cove Springs, FL 32043

    • 4,345 Sq.Ft.
  • 5705 COUNTY ROAD 208, C, St. Augustine Unit: C For Sale

    $1,300,000

    5705 COUNTY ROAD 208 C, St. Augustine Unit: C, St Augustine, FL 32092

    • 3 Beds
    • 1 Bath
    • 2,490 Sq.Ft.
  • 5705 COUNTY ROAD 208, St. Augustine For Sale

    $1,300,000

    5705 COUNTY ROAD 208, St. Augustine, St Augustine, FL 32092

  • 96014 ENCLAVE For Sale

    $850,000

    96014 ENCLAVE MANOR, Fernandina Beach, FL 32034

    • 3 Beds
    • 3 Baths
    • 2,113 Sq.Ft.
  • 96014 ENCLAVE Manor For Sale

    $850,000

    96014 ENCLAVE Manor, Fernandina Beach, FL 32034

    • 3 Beds
    • 3 Baths
    • 2,113 Sq.Ft.
  • 253 Parkwood Cir For Sale

    $800,000

    253 Parkwood Cir, St Augustine, FL 32086

    • 4 Beds
    • 3 Baths
    • 2,685 Sq.Ft.
  • 253 PARKWOOD Circle, St. Augustine For Sale

    $800,000

    253 PARKWOOD Circle, St. Augustine, St Augustine, FL 32086

    • 4 Beds
    • 3 Baths
    • 2,685 Sq.Ft.
  • 3315 ATLANTIC Avenue 806 For Sale

    $765,000

    3315 ATLANTIC Avenue 806, Daytona Beach Shores, FL 32118

    • 3 Beds
    • 3 Baths
    • 2,233 Sq.Ft.
  • 3315 S ATLANTIC AVENUE #806 For Sale

    $765,000

    3315 S ATLANTIC AVENUE #806, DAYTONA BEACH SHORES, FL 32118

    • 3 Beds
    • 3 Baths
    • 2,233 Sq.Ft.
  • 3732 BERENSTAIN Drive, St. Augustine For Sale

    $745,000

    3732 BERENSTAIN Drive, St. Augustine, St Augustine, FL 32092

    • 4 Beds
    • 3 Baths
    • 2,914 Sq.Ft.
  • 13962 IBIS POINT Boulevard Active Under Contract

    $700,000

    13962 IBIS POINT Boulevard, Jacksonville, FL 32224

    • 4 Beds
    • 3 Baths
    • 2,706 Sq.Ft.
  • 12114 GRAND PINE Drive Pending

    $650,000

    12114 GRAND PINE Drive, Jacksonville, FL 32224

    • 3 Beds
    • 2 Baths
    • 2,228 Sq.Ft.
  • 21 MAHOGANY WAY For Sale

    $645,000

    21 MAHOGANY WAY, PALM COAST, FL 32164

    • 4 Beds
    • 4 Baths
    • 2,790 Sq.Ft.
  • 21 MAHOGANY Way, Palm Coast For Sale

    $645,000

    21 MAHOGANY Way, Palm Coast, FL 32164

    • 4 Beds
    • 4 Baths
    • 2,790 Sq.Ft.
  • 110 FAWN FIELD Lane, St. Augustine Active Under Contract

    $600,000

    110 FAWN FIELD Lane, St. Augustine, St Augustine, FL 32092

    • 3 Beds
    • 3 Baths
    • 2,275 Sq.Ft.
  • 616 W 16TH Street, St. Augustine For Sale

    $575,000

    616 W 16TH Street, St. Augustine, St Augustine, FL 32080

    • 3 Beds
    • 2 Baths
    • 1,100 Sq.Ft.
  • 10040 SADDLE GATE Court Active Under Contract

    $570,000

    10040 SADDLE GATE Court, Jacksonville, FL 32219

    • 4 Beds
    • 4 Baths
    • 2,932 Sq.Ft.
  • 85110 SOUTHERN CREEK Boulevard For Sale

    $550,000

    85110 SOUTHERN CREEK Boulevard, Fernandina Beach, FL 32034

    • 4 Beds
    • 4 Baths
    • 2,707 Sq.Ft.
  • 2077 BRIGHTON BAY Trail Active Under Contract

    $525,000

    2077 BRIGHTON BAY Trail, Jacksonville, FL 32246

    • 3 Beds
    • 2 Baths
    • 1,780 Sq.Ft.
  • 5 OCEAN CREST Way, 1411 For Sale

    $525,000

    5 OCEAN CREST Way 1411, Palm Coast, FL 32137

    • 3 Beds
    • 2 Baths
    • 1,696 Sq.Ft.
  • 5 OCEAN CREST WAY #1411 For Sale

    $525,000

    5 OCEAN CREST WAY #1411, PALM COAST, FL 32137

    • 3 Beds
    • 2 Baths
    • 1,696 Sq.Ft.
  • 0 DUNNS CREEK RD For Sale

    $500,000

    0 DUNNS CREEK Road, Satsuma, FL 32189

  • 6300 A1A S, B31TH, St. Augustine Unit: B31TH For Sale

    $500,000

    6300 A1A S B31TH, St. Augustine Unit: B31TH, St Augustine, FL 32080

    • 3 Beds
    • 3 Baths
    • 1,525 Sq.Ft.
  • 961 W TENNESSEE Trace For Sale

    $500,000

    961 W TENNESSEE Trace, Jacksonville, FL 32259

    • 4 Beds
    • 2 Baths
    • 2,299 Sq.Ft.
  • 94300 DUCK LAKE For Sale

    $475,000

    94300 DUCK LAKE DRIVE, Fernandina Beach, FL 32034

    • 3 Beds
    • 3 Baths
    • 2,099 Sq.Ft.
  • 94300 DUCK LAKE Drive For Sale

    $475,000

    94300 DUCK LAKE Drive, Fernandina Beach, FL 32034

    • 3 Beds
    • 3 Baths
    • 2,099 Sq.Ft.
  • 9605 US HIGHWAY 1, St. Augustine Pending

    $455,000

    9605 US HIGHWAY 1 S, St. Augustine, St Augustine, FL 32086

    • 3 Beds
    • 2 Baths
    • 1,656 Sq.Ft.
  • 2238 NW 16TH AVE For Sale

    $450,000

    2238 NW 16TH AVE, GAINESVILLE, FL 32605

    • 3 Beds
    • 3 Baths
    • 2,137 Sq.Ft.
  • 28 RIACHUELO Lane, St. Augustine For Sale

    $450,000

    28 RIACHUELO Lane, St. Augustine, St Augustine, FL 32095

    • 4 Beds
    • 2 Baths
    • 1,858 Sq.Ft.
  • 11613 WHITE STURGEON Court For Sale

    $440,000

    11613 WHITE STURGEON Court, Jacksonville, FL 32226

    • 5 Beds
    • 3 Baths
    • 2,517 Sq.Ft.
  • 75837 PONDSIDE LANE For Sale

    $439,000

    75837 PONDSIDE LANE, Yulee, FL 32097

    • 3 Beds
    • 3 Baths
    • 2,006 Sq.Ft.
  • 114 AMBERWOOD Drive, St. Augustine For Sale

    $425,000

    114 AMBERWOOD Drive, St. Augustine, St Augustine, FL 32092

    • 2 Beds
    • 3 Baths
    • 1,579 Sq.Ft.
  • 2450 BENTWATER Drive W Active Under Contract

    $425,000

    2450 BENTWATER Drive W, Jacksonville, FL 32246

    • 3 Beds
    • 2 Baths
    • 1,972 Sq.Ft.
  • 11036 CASTLEMAIN Circle E For Sale

    $409,000

    11036 CASTLEMAIN Circle E, Jacksonville, FL 32256

    • 2 Beds
    • 3 Baths
    • 1,686 Sq.Ft.
  • 38 RED MILL DR For Sale

    $400,000

    38 RED MILL DR, PALM COAST, FL 32164

    • 4 Beds
    • 3 Baths
    • 2,976 Sq.Ft.
  • 38 RED MILL Drive For Sale

    $400,000

    38 RED MILL Drive, Palm Coast, FL 32164

    • 4 Beds
    • 3 Baths
    • 2,976 Sq.Ft.
  • 2772 PEBBLERIDGE Court For Sale

    $394,000

    2772 PEBBLERIDGE Court, Orange Park, FL 32065

    • 4 Beds
    • 3 Baths
    • 2,420 Sq.Ft.
  • 2480 BENTWATER Drive W For Sale

    $375,000

    2480 BENTWATER Drive W, Jacksonville, FL 32246

    • 3 Beds
    • 2 Baths
    • 1,372 Sq.Ft.
  • 13245 AVERY PARK Lane For Sale

    $360,000

    13245 AVERY PARK Lane, Jacksonville, FL 32218

    • 4 Beds
    • 2 Baths
    • 1,997 Sq.Ft.
  • 850 E Watson Rd For Sale

    $350,000

    850 E Watson Rd, St Augustine, FL 32086

    • 3 Beds
    • 2 Baths
    • 1,692 Sq.Ft.
  • 75045 PONDSIDE LANE For Sale

    $345,000

    75045 PONDSIDE LANE, Yulee, FL 32097

    • 2 Beds
    • 2 Baths
    • 1,544 Sq.Ft.
  • 51 JAVA Lane, St. Augustine For Sale

    $344,900

    51 JAVA Lane, St. Augustine, St Augustine, FL 32092

    • 3 Beds
    • 3 Baths
    • 1,687 Sq.Ft.
  • 6767 EVENING DUSK Drive For Sale

    $340,000

    6767 EVENING DUSK Drive, Jacksonville, FL 32244

    • 4 Beds
    • 3 Baths
    • 2,006 Sq.Ft.
  • 11047 SANTA FE Street E For Sale

    $325,000

    11047 SANTA FE Street E, Jacksonville, FL 32246

    • 3 Beds
    • 2 Baths
    • 1,315 Sq.Ft.
  • 245 AMISTAD Drive, St. Augustine For Sale

    $325,000

    245 AMISTAD Drive, St. Augustine, St Augustine, FL 32086

    • 3 Beds
    • 3 Baths
    • 1,776 Sq.Ft.
  • 6633 ALTAMA Road, Jacksonville Active Under Contract

    $315,000

    6633 ALTAMA Road, Jacksonville, FL 32216

    • 3 Beds
    • 2 Baths
    • 1,529 Sq.Ft.
  • 45077 CLEMMONS Road For Sale

    $295,000

    45077 CLEMMONS Road, Callahan, FL 32011

    • 3 Beds
    • 2 Baths
    • 1,152 Sq.Ft.
  • 5663 GREENLAND Road, 1201 For Sale

    $274,900

    5663 GREENLAND Road 1201, Jacksonville, FL 32258

    • 3 Beds
    • 3 Baths
    • 1,531 Sq.Ft.
  • 2946 ROSSELLE Street For Sale

    $274,000

    2946 ROSSELLE Street, Jacksonville, FL 32205

    • 3 Beds
    • 3 Baths
    • 1,034 Sq.Ft.
  • 10490 NE 120TH ST For Sale

    $250,000

    10492 NE 120TH ST, ARCHER, FL 32618

    • 4 Beds
    • 2 Baths
    • 2,280 Sq.Ft.
View All Properties

Follow Us On Instagram